Красная линия и улица
Особенное значение придается дистанции между хозяйственными постройками, жильем и любыми другими сооружениями в приусадебной зоне, СНТ или в дачном кооперативе и проезжей частью. Для того чтобы соблюсти нормативы, строительство нужно проводить с учетом характера и объема уличного движения.
А они различаются в зависимости от того, что собой представляет трасса – разъезд, проезд, оживленную автомагистраль или стандартную улицу. Это предполагает не менее, чем 3 метра от проездов, не менее 5 м от жилого дома до красной линии улиц, а если за забором оживленная автомагистраль, то и 5 м мало для обеспечения безопасности.
Нормативная дистанция до дороги
Индивидуальное строительство, проводимое на участке любого типа землевладения, должно соблюдать необходимый минимум дистанции до коммуникаций – газовых труб, ЛЭП, центрального водопровода или канализации.
Нормы СНиП
Если во время жилищного строения происходит их повреждение, это чревато не только финансовыми убытками и штрафами, но иногда и повреждениями возводимых объектов. Чтобы избежать ошибок в сложном процессе планирования, лучше обратиться на начальном этапе к местным властям за разрешением и вовремя откорректировать план-схему, пока не начато строительство.
https://youtube.com/watch?v=HL2JzcxyptY
Соблюдение правил безопасности
Первый нормативный документ, на который необходимо обратить внимание, – закон РФ от 30.12. 2009 № 384-ФЗ «Технический регламент о безопасности зданий и сооружений» (далее – Закон № 384-ФЗ)
Основные принципы безопасности, имеющие отношение к малоэтажному и приусадебному строительству. К таким объектам относится и гараж.

Принцип 1. Здания и сооружения не должны нести угрозы механических повреждений. Здания, постройки не должны угрожать людям механическими разрушениями и травмами в результате этих разрушений. Угрозы механических повреждений не должно существовать и для других построек и инженерных сооружений. Как пример, можно рассмотреть ситуацию, когда сосед ставит свой гараж таким образом, что ворота этого гаража при открывании разрушают забор вашего участка. Ситуация, как минимум ведет к скандалу между соседями, как максимум – к судебному разбирательству.
Принцип 2.
В процессе эксплуатации и при строительстве домов и помещений хозяйственного или технического назначения, должны учитываться правила пожарной безопасности. Сегодня к малоэтажному гражданскому строительству ослабили регулирующий подход. Пожарную опасность объекта (если он используется для бизнеса) в сфере частного домовладения определяет сам собственник. Нужно учитывать правила (СП 42.13330.2011, СНиПы: 2.07.01-89, 31.02.2001, 30.02.97, 2.01.02-85) и правила пожарной безопасности, установленные техническим регламентом (закон от 22.07.2008 № 123-ФЗ, далее – Регламент № 123-ФЗ).
Принцип 3.
В процессе возведения и эксплуатации зданий, хозпостроек (в том числе и гаражей) и сооружений инженерно-технического обеспечения, необходимо соблюдать нормы санитарной безопасности, не применять материалы или технологии, несущие угрозу здоровью людей.
Принцип 4.
Необходимо учитывать экологические последствия. Наносить вред природе запрещено.
Принцип 5.
Конструкции зданий и сооружений должны быть рассчитаны на возможные природные катаклизмы, характерные для местности, где производится строительство.
Принцип 6.
Дома, гаражи, хозяйственные строения, сооружения, их обеспечивающие, не должны вызывать ситуаций, приводящих к травмам людей. Дома, хозяйственные постройки на участке нужно располагать так, что бы исключить возможность травмирования человека.
Принцип 7.
Здание и сооружение сегодня должны быть энергетически эффективны. Соблюдение данного принципа (использование современных технологий энергосбережения) позволяет сэкономить собственнику на эксплуатационных расходах. Собственник экономит свои средства и экономит природные ресурсы и энергию в общегосударственном масштабе.
К таким постройкам, как гараж на один-два автомобиля на территории частного домовладения сегодня особых требований нет. Соблюдение указанных принципов позволяет максимально удобно расположить все хозяйственные постройки на участке, максимально предусмотреть возможные аварийные и нестандартные ситуации, сохранить добрососедские отношения.
Нормы строительства гаража на участке
Уже в 2020 году стоял вопрос об обязательной регистрации капитальных гаражей, и владельцы земельных наделов стали планировать постройку боксов для автомобиля таким образом, чтобы не подпадать под действие вводимого налога. Кроме отдельно стоящего капитального строения для личного автомобиля, существовали и другие варианты.
Примыкающий к забору
Его единственным минусом считается возможность беспрепятственного проникновения злоумышленников, но такой гараж имеет много положительных сторон. При существовании сооружения экономится территория участка, по которой обычно обеспечивается проезд.

Расстояние от ограждения до объектов на участке
Домочадцы избавлены от негативных ощущений при вдыхании угарного газа и шума мотора. Возможный камень преткновения – ворота. При открывании они не должны мешать ни автомобилям, ни пешеходам, поэтому их либо делают открывающимися вовнутрь, либо отодвигают само строение на метр вглубь.
Если достигнуть соглашения с соседями и закрепить его в письменном виде, задняя стена может стать частичной заменой ограждению. Это легко осуществить, если крыша гаража не будет выступать на соседний участок и на стенке нет вентиляционных отверстий. Иногда попадание воды со скатной крыши предотвращают с помощью качественного водостока и наклона крыши в свою сторону.
Пристроенный к дому
Распространенный вариант, при котором необходимое расстояние между домом и гаражом регламентируется удаленностью входа. Однако если использовать проект встроенного в дом сооружения, можно облегчить доступ без необходимости выхода на улицу и сэкономить и без того небольшие размеры участка.

Около леса
Отсутствие запрета на подобное строительство (совмещение с домом или размещение в нем), не означает, что при совмещении для функциональной пристройки не следует соблюдать остальные нормы:
- от забора в этом случае пристроенный флигель размещается на расстоянии, положенном для жилого дома, – 3 метра;
- до сарая для птицы и скота – 4 м, как и до посаженных деревьев;
- до красной линии, оживленной дороги – 5 метров;
- до простых хозпостроек – 1 метр, как и до кустарника;
- до санитарно-гигиенических сооружений – не менее 8 метров вследствие повышенной пожароопасности (баня). Определение дистанции происходит по пожарным нормам и зависит от материалов сооружения.

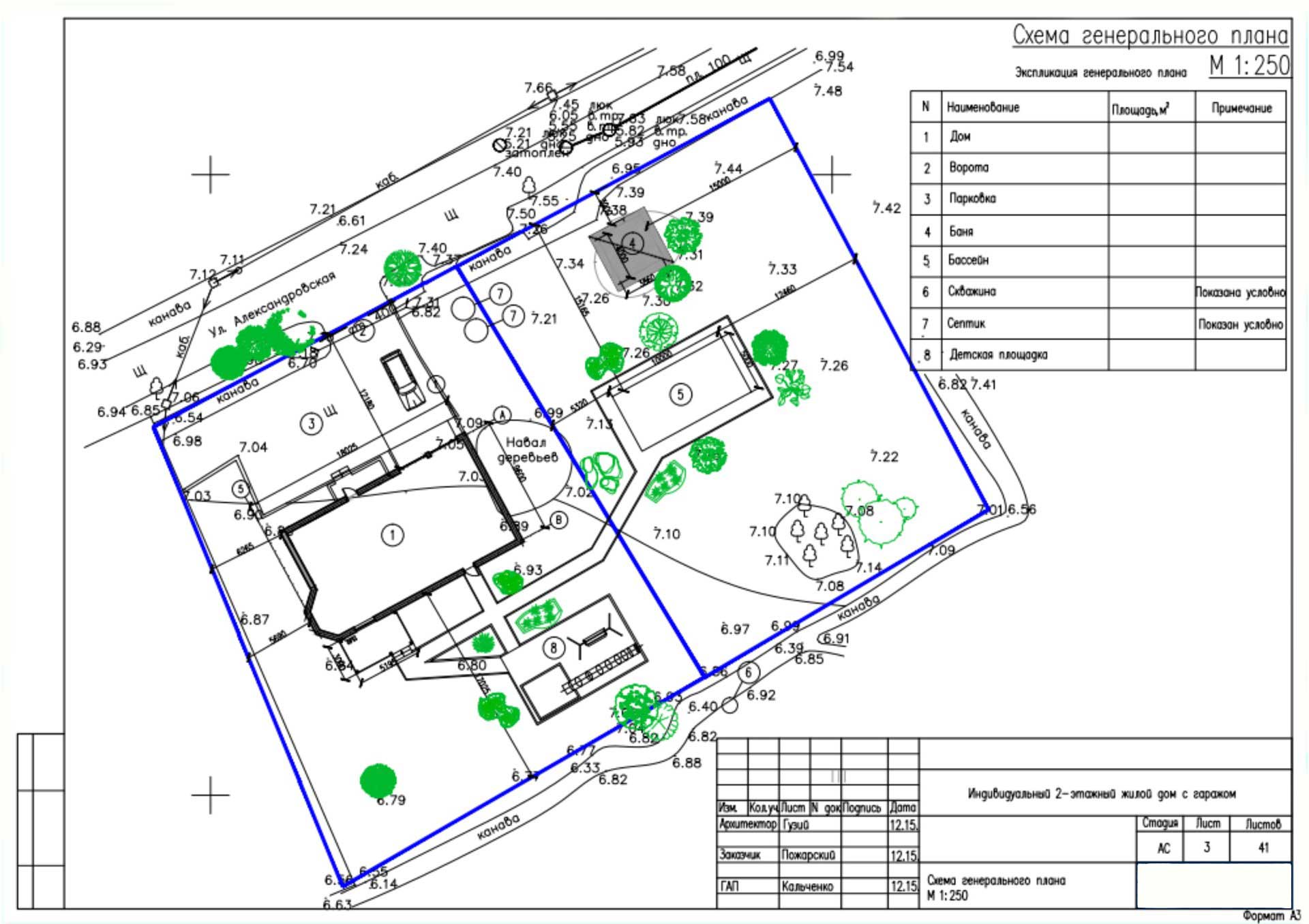
Схема расположения построек
Пристроенный или встроенный гаражный бокс накладывает некоторые требования к владельцу со стороны пожарной инспекции. Для осветительных приборов необходимо наличие защитных плафонов и специальных рукавов для электропроводки.
На какие документы следует обратить внимание
Вопросы возведения индивидуальных жилых домов и хозяйственных построек регулируют строительные нормативы:
- СП 53.13330.2019 (актуализированная редакция СНиП 30-02-97) рассказывает, на каком расстоянии должны располагаться объекты относительно границ между участками, частной и муниципальной территорией. Положения документа определяют также допустимый процент площади под застройку, мощение.
- СП 31.13330.2012 (актуализированная редакция СНиП 2.04.02-84) и СП 30.13330.2016 (актуализированная редакция СНиП 2.04.01-85) описывают, как должны быть организованы системы подачи и отведения воды.
- СП 42.13330.2016 (актуализированная редакция СНиП 2.07.01-89) регулирует вопросы застройки территорий сельских и городских поселений, правила прокладки электрических кабелей, линий трубопроводов.
Перед тем, как приступить к разработке плана застройки участка, потребуется изучить немало нормативных документовИсточник noskov.ru
Положения законодательных актов базируются на правилах обеспечения пожарной безопасности, санитарно-гигиенических требованиях.
Расположение строений на участке относительно его границ
Соблюдение требуемых законом промежутков между постройками на участке и его границами необходимо для охраны и поддержания чистоты, здоровья граждан, проживающих в непосредственной близости друг от друга.
Расстояние определяют, отсчитывая от границы с участком соседей:
- до жилого дома должно оставаться не менее 3 м;
- до объектов санитарного назначения оставляют 2,5–3,5 м (требование касается туалета, бани, летнего душа);
- до сарая, используемого в качестве жилья для сельскохозяйственных животных, должно быть не меньше 4 м;
- до загона, эксплуатируемого в качестве жилья или выгула сельскохозяйственных животных, также должно оставаться не менее 4 м;
- до теплицы или оранжереи оставляют не менее 4 м, чтобы избежать затенения, а также попадания избыточного количества удобрений, гербицидов и других средств защиты растений на участок соседей;
- строения хозяйственного назначения должны отстоять от пограничной территории на 1 м, если исполнение данного пункта правил невозможно, допускается размещать их ближе, но обустраивать скат крыши таким образом, чтобы он «смотрел» в сторону собственного владения.
Размещение курятника с выгулом для птиц на приусадебном участкеИсточник stroim-dom.net
Правильное выполнение замеров подразумевает ведение отсчета от максимально выступающих в сторону соседей точек облицовки стен, цоколя. Их осуществляют строго по прямой линии без учета углов и изгибов.
Дополнительные требования к размещению построек
Правила пожарной безопасности расширяют накладываемые на хозяев участка ограничения в отношении расположения жилых и хозяйственных строений. Требования учитывают характер выбранных для возведения конструкций материалов, призваны предупредить распространение пожара в случае возгорания.
- Если жилое здание планируется возвести из кирпича, камня, иных негорючих материалов, минимальное расстояние между соседствующими объектами остается неизменным и равняется 6 м.
- При использовании для строительства жилых зданий бетона расстояние между ними должно составлять не меньше 8 м, железобетонных изделий — 10 м.
Расстояние между жилыми домами должно соответствовать требованиям действующего законодательстваИсточник moydom.ru
Оснащение постройки из любых указанных материалов перекрытиями из древесины потребует увеличить минимально допустимый промежуток между соседними жилыми зданиями еще на 2 м. Деревянные коттеджи могут находиться на расстоянии не менее 15 м друг от друга.
Существуют ситуации, когда указанные правила не действуют. Так, двурядная планировка, а также постройка домов вплотную по системе «один дом на два хозяина» являются исключениями.
Коттедж, предназначенный для раздельного проживания двух семейИсточник nedvio.com
Нормативные документы
Расстояние между забором и дорогой определяют разные нормативные документы:
- Земельный кодекс РФ;
- Градостроительный кодекс РФ;
- СП 53.13330.2019 «Планировка и застройка территории ведения гражданами садоводства»;
- СниП 2.07.01-97 «Градостроительство. Планировка и застройка городских и сельских поселений» (или актуализированная его редакция СП 42.13330.2016);
- СП 11-106-97 (редакция от 12.03.2001) и СП 256.1325800.2016 «Свод правил по проектированию и строительству»;
- уставы дачных кооперативов или садоводческих товариществ;
- местные и муниципальные нормативы.

Земельный кодекс РФ
Примечательно, что документы, участвующие в формировании допустимых расстояний, заметно отличаются от нормативов, регулирующих расположение объектов на участке. Это важный момент, поскольку в данном случае речь идет о дистанции, находящейся за пределами земельного надела. В основном здесь работают строительные нормы, определяющие расстояния исходя из условий укладки покрытия, возможности подхода техники, соблюдения общих правил создания дорог того или иного типа.

Градостроительный кодекс РФ
При этом основным нормативным документом, определяющим все аспекты относительно расстояний, прочих параметров дороги и ограждения участков, является Генплан. Это рабочий документ, определяющий положение всех объектов в том или ином населенном пункте, включая здания, сооружения, дороги и т. п. Он создан исходя из общих нормативов, но обладает более конкретной привязкой к топографии и специфике данной местности.

Дороги на нем точно определены по ширине, расположению и прочим показателям, и никаких изменений здесь не допускается. Местоположение забора определяется техниками БТИ или специалистами Росреестра по данным Генплана. Поэтому попытки вынести забор за пределы земельного надела — это нарушение сразу всех нормативов, что автоматически влечет определенное наказание.


Примечательно, что в садоводческих или дачных кооперативах дороги создаются по другому принципу. Выделяется некоторая часть территории, границы которой нанесены на кадастровый план (красные линии). Разделение на участки производится администрацией кооператива (товарищества), и дороги в них планируют по условиям эксплуатации (учитывая размеры, количество участков, нагрузку, возможность подхода строительной или специальной техники). Здесь основными документами становятся строительные нормативы и противопожарные правила.

Строительные нормы при планировании ограждений
С чего обычно начинается стройка – это с выбора места расположения дома на участке. Контрольным параметром является расстояние от дома до забора. Эта величина регламентирована СНиПом. По остальным постройкам также имеются узаконенные нормы.
ФОТО: avatars.mds.yandex.netОбычный дачный участок
В СНиП 30-02-97 описаны все строительные нормы, касающиеся планирования ограждений. Если они не соблюдены, то дальнейшее строительство не будет разрешено. Документ содержит рекомендации для определения расстояний от готового забора до стены любой постройки на участке. Эти рекомендации основаны на правилах безопасности при возможном пожаре. Их соблюдение защитит от переноса огня на постройки, размещённые неподалеку, при возгорании любого из выстроенных рядом объектов.
Российские пожарные нормы рекомендуют следующие промежутки между жилыми домами:
- 6 м — минимальное расстояние между зданиями из негорючих материалов;
- 8 м — минимальное удаление строений, содержащих деревянные перекрытия либо балки;
- 10 м — минимальное расстояние любого здания из негорючего материала от деревянной постройки;
- 15 м — расстояние между зданиями из дерева.
Согласно СП 30-102-99, жилое строение должно располагаться на расстоянии не менее 6 м от жилищ, гаражей и подсобных строений на соседнем участке. Расстояние варьируется в зависимости от региона и материала постройки (деревянные дома должны устанавливать на расстоянии более 10-15 м друг от друга).
СП 11-106-97 содержит материалы, на основе которых разрабатывается документация, гарантированно проходящая утверждение во всех государственных органах.
Однако при однорядной застройке разрешено расположение зданий вплотную, каким бы ни был их материал возведения и назначение. Этот строительный приём называется блокированием. Так сооружают здания, в которых впоследствии проживают разные семьи (каждая ‒ в своей половине дома).
В каждом муниципалитете имеются утверждённые Правила землепользования и застройки (ПЗЗ). В них прописаны минимальные расстояния от границ земельного участка, на которых должны располагаться индивидуальный жилой дом и другие постройки. Как правило, расстояния эти следующие: от границ, проходящих вдоль улиц – 5 метров, от границ, проходящих вдоль соседних участков, переулков, проездов – 3 метра. Вспомогательные строения (бани, гаражи, сараи и т. п.) можно размещать ближе к заборам соседей, в основном ограничение – не менее 1 метра.
С 15 апреля 2020 года действует новый свод правил СП 53.13330.2019 «Планировка и застройка территории ведения гражданами садоводства. Здания и сооружения (планировка и застройка территорий, садоводческих (дачных) объединений граждан, здания и сооружения)».
ФОТО: avatars.mds.yandex.netПримерная планировка дачного участка с учётом соседей
Статья по теме:
Расстояние от забора при строительстве гаража: документация и нормы СНиП
К отдельно стоящим и пристроенным к дому гаражам, возводимым на частных участках для личных автомобилей, действуют нормы:
- СНиП 2.07.01 – 89. «Градостроительство. Планировка и застройка городских и сельских поселений»;
- Градостроительный комплекс РФ 29.12.2004, №190-ФЗ;
- «Правила пожарной безопасности зданий и сооружений» от 21.01. 1997г;
- Нормы противопожарной безопасности №53.13330.2011.
Гараж должен находиться на расстоянии 1 м от соседнего забора, и 6 м от окон, веранды и стен соседнего дома
Замер делается от края выступающего цоколя или стен, что больше выделяется наружу, до линии ближайшего элемента соседнего здания
Балкончики, выступающие выше уровня крыши постройки для машины, во внимание не принимаются, если не имеют колонн и капитальных опор другого типа
Соблюдение необходимых расстояний между гаражом, забором и ближайшим строением на соседнем участке убережет от административной ответственности, споров с соседями и принудительного сноса строения
Нарушение требований СНиП 2.07.01 – 89 и СНиП 21.01 – 97 не повлечет за собой уголовного наказания, поскольку в отношении хозяйственных построек, к которым относятся гаражи, нормативные документы имеют рекомендательный характер.
На своем участке можно их проигнорировать, но после строительства гараж необходимо зарегистрировать в БТИ, поэтому могут возникнуть неприятности.
По согласованию с соседом можно поставить гараж ближе 1 метра от забора и даже впритык к соседнему, по меже.
Гараж, построенный впритык к забору, без согласования с соседом, является нарушение требований
Но правила пожарной безопасности требуют оставлять проход между соседними зданиями не менее 1 метра. При этом обязательно надо выполнить некоторые мероприятия:
- заключить с соседом контракт о взаимном согласии отступлений от СНиП;
- оборудовать рядом противопожарный щит с ведрами, баграми и другими инструментами;
- поставить возле щита ящик с крышкой, наполненный песком не менее 100 л;
- сделать заземление проводки, всех розеток;
- установить защитные ламповые плафоны;
- не включать электрообогреватели.
Дополнительно желательно иметь второй выход в стороне от ворот.
Гараж с проходом между забором, выходом в стороне от ворот и площадкой соответствует нормам и правилам
При прохождении рядом с участком и по нему линий электропередач, газопроводов, систем водоснабжения, необходимо учитывать требования законодательных нормативов на расстояние от гаража до данных систем.
Разрешение действует на протяжении 10 лет даже при условии смены владельца земельного участка. Это приведет к минимальным затратам времени и средств, решит сразу все вопросы с учетом норм СНиП и регламентирующих актов разных ведомств, учетом расстояния до улицы, соседних строений, источника воды и септика.
Соблюдение правил безопасности
Возведение любых хозяйственных построек и тем более жилых домов, требует выполнения определенных стандартов. В первую очередь, с чем могут возникнуть проблемы, так это согласование с пожарными службами. Следует отметить, что эти правила важны, прежде всего, для вас самих, ведь это безопасность и быстрая помощь в случае экстренного происшествия.
Важные моменты:
- Расстояние между соседними строениями должно быть не менее пяти метров.
- Пристроенный гараж считается частью жилого дома, поэтому расстояние в этом случае доля забора должно составлять не менее трех метров.
- Отдельно стоящее здание уже относится к хозяйственным постройкам, поэтому нормативы тут немного мягче (от одного метра и более).
- Класс пожарной безопасности определяется материалом постройки. Максимальную оценку получат каменные и кирпичные строения.
- Электропроводка должна быть выполнена с учетом всех требований. Защитные плафоны на осветительных приборах обязательны.
- Хранение горюче – смазочных материалов также необходимо продумать. Для этого используются специальные емкости, герметично закрытые и без повреждений. Если в гараже имеется технический погреб, лучше всего для хранения использовать именно его.
- Растущие рядом деревья лучше расположить не менее чем на три метра от строения. Это убережет дальнейшее распространение огня в случае возгорания.
- Если здание не относится к пожаробезопасным, оно должно находиться на удалении не менее десяти метров от жилых и хозяйственных построек. Это правило распространяется в первую очередь на деревянные строения, а также постройки из подручных материалов.
Можно немного схитрить и разместить гараж немного ближе к строению на участке соседа. Речь идет о 2 – 2,5 метра, но эти правила действуют только при отсутствии в гараже отопительных приборов или печей, а также в специально оборудованном стенде пожарной безопасности, включающего в себя наличие огнетушителя и отдельного рубильника электроснабжения.
Еще один вариант: когда участок имеет угловое расположение, в статье не рассматривался вовсе. При этом расположение гаража к боковому проезду также должна быть не менее трех метров. Это обеспечит свободный доступ в случае экстренных ситуаций, а также обезопасит вас от злоумышленников. Чтобы сделать постройку максимально безопасной, необходимо также избавится от расположенных вблизи деревьев.
Размещение гаражной постройки требует обязательного согласования, ведь тут существует множество важных нюансов. В первую очередь речь пойдет о необходимом расстоянии между ограждениями участка, соседскими сооружениями и общественными коммуникациями. Сделать все правильно помогут наши советы, но лучше также предварительно согласовать свой план в архитектурных организациях вашего населенного пункта. В этом деле есть много тонкостей, определить которые может только специалист.
Разрешенные расстояния
Казалось бы, приобретая земельный участок для ИЖС или в СНТ в собственность, вы становитесь его владельцем. И с этого момента можете начинать осуществлять на земле любую деятельность, которая не запрещена законом.
Нормативы предусматривают расстояния между следующими объектами:
- между домом и забором с внешней стороны и со стороны соседей;
- между домом и хозпостройками;
- между домом и высокими деревьями;
- между домом и кустарником;
- между домом и баней;
- между домом и туалетом.
Это далеко не полный перечень норм, который придется соблюсти счастливому владельцу участка. Нормы предусмотрены не только санитарные, но и пожарные. Причем последние соблюсти гораздо сложнее.
от дома до забора
Закон устанавливает множество требований к возведению забора. Предусматриваются его высота, прозрачность, расстояние от дома, от других построек, от дома соседей.
Расстояния устанавливаются от изгороди:
- смежного с соседями;
- с переулком (не менее 3 м);
- с дорогой (не менее 5 м).
Важно! При расчете расстояния от дома предусматриваются не только от стен дома, но и от всех пристроек, которые превышают 0,5 м (веранда, навес). Дополнительные требования предусматриваются к материалу дома
В зависимости от материала строения, забор должен располагаться на определенном расстоянии
Дополнительные требования предусматриваются к материалу дома. В зависимости от материала строения, забор должен располагаться на определенном расстоянии.
| № п/п | Расстояние | Материал стен дома |
|---|---|---|
| 1 | 6 – 8 м | кирпичный или каменный |
| 2 | 10 – 12 м | пожаробезопасные каркасные здания |
| 3 | 12 – 15 м | деревянный |
от дома до дома
Зачастую причиной конфликтов между соседями становится близкое расположение строений к общему забору. Высокий дом может стать причиной затенения соседской территории.
Кроме того, расстояние от дома до дома соседей рассчитывается по требованиям пожарной безопасности. Они предусматриваются в зависимости от материала постройки:
- бетон, железобетон, камень – 6 м;
- каркасные строения и дерево – 10 м;
- камень, железобетон и бетон с деревянными перекрытиями – 8 м.
от беседки до забора
Под беседкой понимается легкое строение, предназначенное для семейных посиделок и чаепития. На практике встречаются легкие переносные объекты и капитальные беседки.
Расстояние построек от забора различается в зависимости от их вида. Если капитальная беседка должна быть возведена на расстоянии не менее 3 м от общего ограждения, то легкая (переносная) – может располагаться в 1 м от забора.
от хозпостроек до границы участка соседа
Под хозпостройками понимаются строения для хранения хозяйственного инвентаря, сараи, помещения для домашних животных, подвалы, подполы. Также к ним относятся выгоны для домашнего скота и птицы.
Закон предусматривает необходимость размещения хозпостроек на расстоянии не менее 1 м от общего забора.
Если хозпостройка объединена с жилым домом, то расстояние увеличивается до 3 м.
Важно! Если хозяйственная постройка включает подвал или погреб, то расстояние рассчитывается именно от них
от веранды до забора
Веранда принимается во внимание для расчета расстояния до забора, если ее размер превышает 0,5 м. В противном случае расчет осуществляется от стен жилого дома
Если веранда превышает минимальный размер, то расстояние предусматривается не менее 3 м. Причем оно актуально как до общего ограждения с соседями, так и до внешних изгородей.
Чтобы определить отступ от соседей при строительстве частного дома необходимо руководствуется нормами СНиП и пожарными требованиями. Требования устанавливаются не только к отступу от строений, но и к их материалу. Чтобы избежать проблем с соседями целесообразно заранее уточнить полный перечень нормативов. Получить дополнительную информацию можно у юристов сайта. Просто оставьте вопрос дежурному юристу.






































