Выбор профнастила для забора
Перед закупкой стоит внимательно ознакомиться с ассортиментом профилированного листа, который предлагают производители. Профнастил относится к основному материалу для ограждения. В общей стоимости конструкции его доля достигает 30%.
Что собой представляет профнастил? Это лист стали, имеющий толщину от 0,4 до 1,1 мм, и который прошёл обработку на прокатной линии. На этой линии его прокатывают через целый ряд роликов соответствующей конфигурации. После прокатки стальной лист приобретает планируемый профиль. То есть то, что мы видим: чередующиеся волны, канавки, рёбра.
Благодаря созданной рельефности лист получает определённую пространственную жёсткость. Чем толще лист-заготовка и выше полученный профиль, тем значительнее будет жёсткость. В зависимости от параметров меняется и назначение готового профлиста.
Для производства профнастила используется специальная листовая сталь, идущая в листах или в бухтах. Стальные листы уже покрыты защитной антикоррозионной и высокополимерной краской.
Цена за качественный профилированный лист с полимерным покрытием сегодня стоит от 250-300 рублей за один квадратный метр.
Промышленностью выпускается десятки видов стального профлиста. Какой из них лучше всего купить для забора?
Разберёмся с тремя базовыми характеристиками профнастила:
- Высота рёбер жёсткости (в миллиметрах).
- Толщина металла (в миллиметрах).
- Полимерное покрытие: вид и толщина.
Часть требуемой информации можно получить из маркировки профлиста. Она представлена буквами и цифрами.
Буквы указывают, где профнастил рекомендовано применять:
- С – профнастил для стен, заборов, хозпостроек;
- Н – несущий лист, применяется для опалубки перекрытий и кровли;
- НС – это универсальный профлист, который подходит для разных видов построек, а также для ограждения территории.
Выбор обычно проводят по высоте и форме профиля. Рассмотрим маркировку профнастила:
- Наиболее мощные – это несущие листы «Н». Характеристики: очень высокий профиль, способны листы выдержать очень высокие нагрузки, имеют рёбра жёсткости. Для ограждения участка такой профнастил не подойдёт, так как окажется слишком дорогим материалом, и его возможности полностью для забора не реализуются.
- Менее мощные – стеновые листы «С». Профили – от 8 до 25-30 мм. Подходят листы для кровли и для заборов.
- Промежуточные — листы профнастила «НС». Отличный строительный материал с многообразием вариантов применения. Но если для забора на дачу, то материал будет выглядеть излишеством. А вот для ограждения приусадебной территории или коттеджа – отличный вариант.
- Часто можно встретить тип листов – «МП». Листы относятся к универсальным, они подходят и для стен лёгких сооружений, и для покрытия кровли. В полной мере такой профлист подойдёт и для заборов.
Цифры, которые стоят после букв профнастила, – это высота рёбер жёсткости. По утверждениям строителей, для заборов оптимально подойдёт лист с высотой профиля 8-21 миллиметр.
Материал с высоким ребром (от 44 мм и больше) имеет профлист, который предназначен для монтажа на кровле или на высоких стенах.
Например, изучив предложенные варианты профилированного листа, вы решили поставить на забор лист марки С21. Какой вид защитного покрытия и толщину металла надо выбрать, чтобы цена ограждения была невысокой, и срок эксплуатации был не меньше 30 лет?
Из диапазона толщины стали (от 0,35 до 0,7мм) выбирают средние показатели — 0,5-0,55 мм. Ставить на забор «голую» профилированную оцинковку специалисты не рекомендуют. Сталь с двухсторонней полимерной защитой прослужит дольше и вид у неё получше. Для заборного профнастила оптимальный вид защитного покрытия – полиэстер, имеющий толщину 25 мкм. Производители предлагают два варианта: мат или глянец.
Стандартная ширина профлиста марок «Н», «С», «НС» составляет:
- С8 – 1150 мм;
- С18 – 1100 мм;
- С21 – 1000 мм.
Более широким представлен выбор длины листа (это высота забора): от 800 мм до 12 метров.
Стоимость за 1 м² качественного стенового профлиста с двухсторонним полиэстровым покрытием: от 300 до 350 руб. Профнастил с полимерным слоем, который имитирует фактуру металла, древесины, камня, дороже: от 490 до 550 руб./ м².
Устройство ограждения из профнастила
Первым делом рассмотрим, что собой представляет конструкция из профилированного листа. Схема устройства забора из профнастила – очень простая, не требует сложных технологических операций.
Простейший забор из профлиста – вполне себе элегантный, пусть без изысков и лоска снаружи. Каркасные элементы практически незаметны. Сама схема выглядит примерно так:
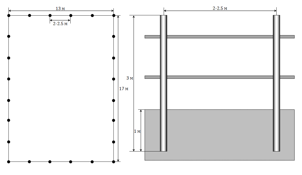
Рассмотрим, что собой представляют значения на схеме:
1 – это почва, в которую вкапываются столбы-опоры.
2 – это скважины, которые пробуриваются в почве для установки опор.
3 – это столбики, которые являются основанием каркаса забора. Обычно в качестве материала используют круглые или профильные стальные трубы.
4 – лаги (нередко их называют перемычками), которые связывают опоры, и они становятся направляющими для крепления профнастила. Обычно используют в качестве перемычек профильную трубу прямоугольного сечения.
5 – собственно листы профилированного листа, которые устанавливаются всплошную, с перекрытием установочной волны, и закрепляются кровельными самонарезными винтами на перемычках.
Хоть схема и простая, но весьма надёжна. Параллельно с рассмотрением расходов каждого из необходимых материалов, будем разбираться в тонкостях схемы.
Выбор столбов для забора из профнастила
Так как цена за метр работы при возведении забора из профлиста зависит от метода заделки столбов в землю, то рассмотрим этот вопрос.
Применяют 4 варианта монтажа ограждений из профнастила:
- Трубы из стали, которые бетонируют ямочным способом.
- Стальные трубы, которые устанавливают в ленточное основание.
- В качестве стоек каркаса используют винтовые сваи.
- Кирпичные столбики.
Выбор конкретного варианта заделки столба зависит, насколько влажен и плотен грунт. Например, когда грунт тяжёлый и глинистый, то достаточно выкопать ямы, поместить в них стальные трубы и залить бетонным раствором.
А вот для лёгких супесков для надёжного крепления каркаса потребуется ленточный фундамент. Без основания высокий забор способен деформироваться либо под действием порыва ветра опрокинуться. Также бетонная «лента» с армированным каркасом защитит конструкцию от сезонных подвижек почвы, поглотив возникающие при движении напряжения.
Винтовые сваи можно устанавливать на любых почвах, за исключением каменистых и скалистых. Сваям не требуется дополнительное бетонирование, они способны выдержать сильные порывы ветра.
Столбики из кирпича отдельно от ленточного основания не устанавливают. При возведении кирпичных столбиков под профнастил, кроме надёжного фундамента, конструкция усиливается трубами либо арматурным поясом.
Основное достоинство ограждения с кирпичными столбиками – презентабельный внешний вид. Этот вариант чаще всего применяют для ограждения фасада усадьбы.
Нюансы расчета бюджета
 
 Разные виды заборов
Прежде всего, необходимо ответить себе на несколько вопросов:
- Что вы собираетесь огородить этим забором – участок, загородный дом, рабочую территорию, дачу?
- С какой целью – обозначить границы, охрана территории, для красоты или всё вместе?
- Кто будет строить – вы лично (с домочадцами и соседями) или наёмные строители?
- Какая высота и длина забора?
- Когда строить?
Фото забора из ДПК
Поэтому размер бюджета такого строительства может колебаться в диапазоне от нуля до… если не бесконечности, то очень серьёзных сумм за погонный метр. Если вас интересует ценовая категория «дёшево и сердито» – вбивайте поглубже палки (например, найденные на свалке), укрепляйте фрагментами мебели, скрепляйте жердями и прибивайте их оставшимися от прадедушки гвоздями. В итоге может получиться прекрасный забор в диком стиле.



 Строительство забора из штакетника
Сначала поговорим о материале. Основными материалами для постройки заборов в России являются:
- сетка рабица;
- доски;
- профнастил;
- 3d-профиль;
- поликарбонат;
- бетон (панельный, монолитный, из секций);
- металл;
- кирпич;
- шлакоблоки;
- пластик и многое другое.


Есть и комбинированные варианты – к примеру, заборы из кирпича с декоративной художественной ковкой.
Что объединяет все типы заборов? Погонный метр. Это тот же метр, только им измеряют длину материала и размер работы.
 
 Красивый деревянный забор
Как рассчитать метраж забора? Только вручную, обойдя участок по периметру с рулеткой. И не один раз. Можно это сделать самому, но лучше пригласить замерщика. Его услуги стоят от 500 до 2000 рублей в зависимости от региона. Однако в большинстве фирм замер сделают и бесплатно – если строить будет именно эта компания.
 
Сколько брать погонных метров материала? Смотря какого. Если речь о сетке-рабице, профнастиле, поликарбонате или 3d панелях, то чуть больше периметра. Во-первых, часть фурнитуры всё равно будет обрезана. Во-вторых, если материал красивый и вписывается в архитектурный ансамбль усадьбы, разумно будет оставить про запас для ремонта. Но и сокровищ Плюшкина тоже делать не стоит, так как часть протяжённости забора всё равно будут занимать столбы, которые сэкономят погонные метры.
 
Сергей Свистунов
 Строитель со стажем, редактор информационного портала Zaborchik.com
Если деревянный забор, то с расчётом метража придётся несколько помучиться. Доска продаётся именно в виде доски, а не листа, и поэтому стоимость зависит от высоты и частоты забора.
— Сергей Свистунов Строитель со стажем, редактор информационного портала Zaborchik.com
Его заборейшество
Теперь необходимо приступить к рассмотрению цен на сами заборы. И тут рынок даёт нам невероятный выбор материалов. Тут и сетка рабица, и профнастил, и 3d-панели, и кирпич, и шлакоблоки… Запутаться не просто, а очень просто. Как выбрать забор по карману и по вкусу? О вкусах не спорят, а вот о ценах поговорим. Самый бюджетный вариант – сетка рабица. Цена квадратного метра такой сетки – от 75 до 275 рублей, а натянуть её можно на столбы.
 
 Забор из сетки-рабицы
То есть для участка 10 соток с длиной забора 42 метра и высотой в 1.80 вполне может хватить на сетку 20000 рублей, плюс 25 грунтованных столбов обойдутся в примерно аналогичную сумму; 40000 рублей за весь забор? Неплохо. А вот забор из сварных ячеек сетки-рабицы будет стоить чуть подороже.


Забор из более престижных материалов обойдётся дороже. В последнее время стала набирать популярность 3d-сетка, то есть панели из сварной проволоки. Стоимость такой ограды начинается от 1000 рублей, есть возможность использовать лёгкие фундаменты благодаря низкой парусности. Полная стоимость колеблется от тех же 1000-1500 за погонный метр (если строить самому и на штатных столбах) до 5000 (с капитальным фундаментом и применением посторонней рабочей силой).
 

 Плетеный деревянный забор
Если заказчику хочется большей скрытности от посторонних глаз, заборы из профнастила и поликарбоната – самое то. Как более тяжёлые, да ещё и сплошные (обладающие большой парусностью) материалы, они нуждаются в серьёзном фундаменте. Профнастил «заборной высоты» – от полутора до двух метров, стоит от 2000 рублей за погонный метр. Вместе с фундаментом и монтажом можно обойтись в 4000 за пог. м.


Поликарбонат обойдётся чуть дороже, при этом он ещё и не является вандалостойким материалом. Следующим по возрастанию является евроштакетник – от 2500 за погонный метр. Есть также другие лёгкие виды заборов, стоящие примерно столько же.
 
 Забор из евроштакетника
 Сергей Свистунов
 Строитель со стажем, редактор информационного портала Zaborchik.com
Из решений класса «начальный лакшери» можно выделить заборы из шлакоблоков. Они лёгкие, но выглядят солидно, а нужен им только ленточный фундамент начального уровня. Тут цены стартуют от 7000 рублей и выше. Далее – собственно кирпичные, бетонные, кованые и комбинированные варианты. Цена – от 8000 за погонный метр, но если вы собираетесь отделать колонны мрамором, а в середину решётки ненавязчиво вставить кованый родовой герб, то цены могут быть на порядок выше.
— Сергей Свистунов Строитель со стажем, редактор информационного портала Zaborchik.com

 Забор из шлакоблоков
Впрочем, и за среднюю цену от 2000 до 5000 рублей за метр можно оградить себя и своё имущество забором, достойным хозяина.
Ответы на вопросы
Забор из какого материала прослужит дольше?
Самыми долговечными являются заборы из бетона, кирпича и профнастила. Средний срок службы ограждений этого типа составляет 50 лет. На втором месте сетка-рабица и гиттер. Сталь с оцинковкой и полимерным покрытием прослужит не меньше 30 лет. Третье место занимает дерево, в зависимости от ухода и условий эксплуатации деревянный забор прослужит от 10 до 25 лет.
Можно поставить бетонный забор на участке с уклоном?
Если перепад по высоте не больше 25 градусов, то для монтажа забора потребуется провести земляные работы, подготовить основание под каждую плиту. Если уклон больше 25 градусов, то потребуется привлечь к разработке проекта конструктора-проектировщика, а это дополнительные затраты.
Где описаны правила по проектированию и строительству заборов для дач?
Основные документы, регулирующие возведение ограждений — это СНиП 30-02-97 «О планировке и застройке территорий садоводческих товариществ», СП 11-106-97 «О порядке разработки, согласовании и утверждении проектно-планировочной документации при застройке садоводческих товариществ». Разработка проектов для заборов и ограждений также регламентируется нормативными актами, стандартами и Федеральными законами, в частности ТКП 45-3.01-117, ФЗ №66, ГОСТ 12.4.059-89.
В чем отличие квадратных столбов для забора от круглых?
Опоры с квадратным сечением имеют преимущества в плане надежности и прочности крепления. За счет большей площади соприкосновения опоры с направляющим профилем возможна более качественная стыковка при помощи сварки. Благодаря ребрам жесткости квадратные столбы лучше сопротивляются нагрузкам на изгиб. Это качество имеет большое значение, особенно при строительстве сплошных заборов из профнастила, поскольку они отличаются большой парусностью.
Краски для бетонных заборов
Чем обрабатывать деревянный забор?
Как выбрать краску для металлического забора
Какие замки можно устанавливать на калитки из профнастила




































