Материалы для изготовления конструкции
Сэндвич панели хорошо удерживают тепло в помещении
Материалы выбирают в соответствии с механизмом открывания и типом ворот. Если дверь складывается из сэндвич-панелей, их стыкуют так, чтобы не завальцовывать одну с другой для исключения промерзания на соединениях. Сэндвич-панель — это соединенные стальные листы, между которыми укреплен теплоизолятор в виде вспененного пенополиуретана.
Толщина элементов колеблется от 9 до 45 мм. Выпускают одинарные плиты без утепляющей прокладки, но они не пользуются популярностью. Сэндвич-панели изготавливают с рисунком, имитирующим гофру, филенку, микроволну; с текстурой, напоминающей древесину вишни, дуба, березы, мрамор, апельсиновую корку.
Для панорамных полотен используют алюминиевые профили со вставками из сплошного поликарбоната с повышенными противоударными характеристиками. В подъемных секционных воротах в гараж панорамные плиты сочетают с установкой сэндвич-плит. Алюминиевый прокат и заполнение можно покрасить в разные цвета в соответствии с каталогом RAL.
Характеристика конструкции и принцип работы
Секционные ворота – хорошо продуманный, долговечный механизм, поднимающий дверное полотно вверх по направляющим, расположенным на потолке.
Полотно состоит из металлических панелей (секций), соединенных шарнирными петлями. Подъемный механизм состоит из направляющих, барабанов и тросов с пружинным механизмом. Одно движение руки – и ворота плавно поднимаются вверх. Секции накладываются друг на друга и прячутся под потолком.
Обычно конструкция снабжена автоматикой для открывания, но в случаях перебоев с электроэнергией ворота можно открыть вручную.
Секционные ворота состоят из металлических панелей, соединенных шарнирными петлями
Автоматическое открывание обеспечивается приводом, который может быть 2х видов:
- торсионная система. Устанавливается на потолке, работает благодаря тросу. Как только владелец нажимает на кнопку, тяговый рычаг подтягивает трос, а вместе с ним и секционное полотно. Этот тип чаще всего используется в гаражах при частных домах;
- навальный привод. Более сложная конструкция с мотором и торсионным валом. Крепится прямо над воротами, оборудована цепью, благодаря которой полотно открывается без электричества. Этот вид автоматики – более мощный, подходит для габаритных тяжелых ворот, а значит, редко используется в гаражах при доме.
Разнообразие модификаций
На сегодняшний день компания- выпускает линейку ворот данного типа, состоящую из 9 серий. Выбор определенной модификации должен происходить исходя из габаритных размеров проема гаража, где будут установлены ворота, и размеров самого помещения. Конструктивно различия буду не слишком заметны, но модель, которая подобрана без учета этих условий, может быть менее эффективна в эксплуатации, а ее монтаж будет более сложен.

Необходимые размеры Главными характеристиками, на которые нужно обращать внимание при покупке воротной системы, будут габаритные размеры гаражного портала, толщина стен (особенно если речь идет о цокольной части) расстояние от поверхности пола до потолка (возможность установки оборудования). Имеют значение параметры проема и глубина помещения
Имеют значение параметры проема и глубина помещения
Правило 1. Все решает притолока.
Какая у вас притолока? Так начинается общение с человеком, решившим заказать секционные ворота. Дело в том, что для размещения конструкции ворот требуется место справа, слева, и больше всего, над проемом. И да, это место над проемом ворот и есть притолока.
Та самая пресловутая притолока.
Какая она должна быть, зависит от следующих параметров
У вас проем до 8м2
Для небольших бытовых гаражных ворот площадью до 8м2 устанавливаются пружины растяжения. Высота притолоки должна быть не меньше 100мм (для ручного подъема) и 125мм для ворот с приводом. Это в теории. А на практике, что бы не вылавливать миллиметры, делайте 150мм.

Пример ворот с пружинами растяжения. Видно как мало места ворота занимают над проемом.
У вас проем больше 8м2

Пример ворот с торсионными пружинами. Места над проемом требуется значительно больше.
Вы хотите встроить калитку
Для всех ворот с калиткой, независимо от размера, нужна притолока не меньше 210мм, (стандартный монтаж).
Ворота с калиткой всегда идут с торсионными пружинами.
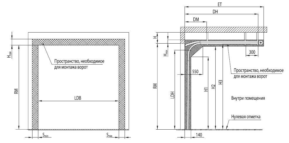
Что делать, если у вас высокая (больше метра) притолока?
Если у вас притолока 500мм и больше, вам сказочно повезло, и вам доступен так называемый высокий монтаж, когда ворота сначала поднимаются максимально к потолку, а уже затем уезжают параллельно потолку. См. рисунок, так понятнее.

Высокий монтаж. Заводской чертеж.
Преимущество: ворота не висят над головой, не нужны длинные подвесы.
Недостатки: высокий подъем доступен не во всех сериях, и за него нужно доплачивать 8% от стоимости ворот.
Что делать, если у вас низкая (меньше 210мм) притолока?
А если у вас притолока меньше 210мм, а нужны ворота больше 8м2, или нужна калитка? Вам поможет низкий монтаж!
Это когда вал с пружинами располагается сзади, в глубине гаража (см. рисунок). В этом случае минимальный размер притолоки будет 100-130мм, в зависимости от типа управления.
Недостаток: доплата 5%.

Низкий монтаж. Заводской чертеж.
Разновидности конструкции
Современные секционные ворота подойдут для помещений всех типов.
Варианты ворот
Конструкции вертикального подъема
Предназначаются для гаражей с большой высотой подъема. Продаются исключительно в строительных гипермаркетах и отличаются тем, что занимают минимальное пространство при установке.
Конструкции высокого подъема
Такие ворота стоят дороже и используются там, где небольшая высота не позволяет выполнить вертикальное поднятие полотна. Высокая цена объясняется применением подвесных кронштейнов, специальных направляющих и большого количества расходных материалов.
Конструкции стандартного подъема
Используются в помещениях, которые полностью готовы к установке, с минимальной высотой притолоки минимум 18 см. Все элементы выполняются из нержавеющей стали. Самый простой и удобный вариант, оттого наиболее популярный.
Конструкции низкого подъема
Низкоподъемные ворота целесообразны в условиях ограниченной высоты проема (притолоки). К потолку крепятся контрольные элементы и торсионные пружины, и если он низкий, то весь аппарат фиксируется на тыльной части направляющих. Если говорить более конкретно, то такой аппарат состоит из:
- торсионного вала;
- наматывающих шкивов;
- балансировочных пружин.
После выбора подходящей конструкции можно приступать к подготовительным работам.
Устройство секционных ворот
В секционных воротах основное отличие в том, что полотно состоит не из единого полотна, а из набора подвижно соединенных между собой секций. Скрепляются секции между собой специальными петлями, обеспечивающими должную степень свободы. Петель обычно по три на каждое соединение — по краям и в середине (при большой ширине ворот может быть больше). По краям каждой секции установлены ролики. По бокам проема ворот установлены направляющие, которые плавно изогнувшись, переходят в потолочную направляющую. Направляющие имеют выемки, в которые заправляются ролики.
Устройство секционных ворот
При открывании секционных гаражных ворот, ролики створок движутся по канавкам в направляющих. Они поднимаются вверх, за счет подвижного сочленения проходят по плавному изгибу и, одна за другой, поднимаются под потолок. При закрытии все происходит в обратном направлении. Вот и все устройство и принцип работы, но вариантов и вариаций много, так что придется разбираться конкретно по каждому компоненту.
Типы подъемных ворот
Все представленные на сегодняшний день гаражные ворота подъёмного типа можно разделить на два вида:
- поворотные;
- секционные.
Установка подъемно-поворотных ворот представляется наиболее разумным решением в ситуации, когда:
- уровень размещения притолоки гаражного проема слишком занижен или же она вообще отсутствует;
- перед владельцем стоит задача обеспечить конструкции ворот повышенную надежность;
- у владельца возникло желание оборудовать свой гараж более современным в плане оформления вариантом ворот.
Разумно задуматься о монтаже секционных ворот тогда, когда в гараже имеется достаточное пространство, чтобы переводить конструкцию из вертикального положения в горизонтальное. По технологии монтажа они схожи с поворотными: в качестве места их размещения выступает внутренняя часть проема. Основу конструкции полотнища ворот образует несколько секций, которые сохраняют подвижность относительно друг друга. При использовании подобной конструкции доступ к гаражу открывается за счет перемещения секций вверх по направляющим, установленным на поверхности стен и потолка гаража.
Производители
На рынке в основном представлены три крупных фирмы, которые выпускают секционные гаражные ворота:
- немецкая фирма Hörmann (Херманн);
- белорусская Alutex (Алютех);
- российская DoorHan (Дорхан).
Есть еще Garaga (Канада), Tecsedo (Швейцария). Есть и три российские фирмы:
- Sedona, Sauber — это тот же Дорхан, только сборка в другом регионе;
- Zaiger (Новосибирск) — использует швейцарские сэндвич-панели и российско-китайскую автоматику, а сборка происходит в Новосибирске.
Основные игроки на рынке
Пока это все производители, которые достойные внимания. Продукцию из Китая лучше не рассматривать — хоть дешево, но очень проблематично в плане эксплуатации. Какой же производитель лучше? Если брать из тройки лидеров, то по отзывам:
- Hörmann (Херманн) — нет никаких проблем. Отрицательных отзывов нет практически совсем, как и недостатков. Но это — самые дорогие секционные гаражные ворота.
- Alutex (Алютех) — вполне достойный вариант, если не хватает средств на «немца».
- DoorHan (Дорхан) и его клоны. Самый бюджетный из тройки лидеров, но имеет больше всего рекламаций.
Неплохие отзывы у еще новосибирского Зайгера (Zaiger), но у них пока не очень развита дилерская сеть и мало представительств в других регионах. Для тех кто рядом — это неплохой выбор.
Правила и техника регулировки подъемных секционных ворот
Используя и ремонтируя конструкцию, необходимо помнить о следующем:
- Если вовремя не починить перекошенные ворота, элементы конструкции подвергнутся быстрому изнашиванию. Придется заменять их на другие.
- Требуется грамотно настраивать балансировку для подъемного механизма. Если балансировка будет выполнена неправильно, это может привести к повышенной нагрузке на ворота. Возможен обрыв троса, поломка прочих элементов конструкции.
- При установке и ремонте конструкции требуется применять исключительно высококачественные материалы. От этого зависит эксплуатационный период ворот.
Обычно конструкция включает в себя 4-6 секций, соединенных шарнирными элементами. Когда ворота открываются, происходит следующее:
- Секции двигаются вверх, накладываются одна на другую.
- Движение секций осуществляется благодаря вращающимся барабанам и наматывающимся на них тросам. Они уравновешиваются пружинами.
- Под потолочной поверхностью (продольно раме) располагаются направляющие. Они предназначены для скольжения панелей, которые опираются на роликовые элементы.

Секционные ворота располагают определенными плюсами:
- Экономия большого количества пространства, как в гаражном помещении, так и на подъезде к нему.
- Высокие теплоизоляционные показатели секций. Индекс теплопроводности равняется 0.5 ватт на квадратный метр.
- Высокие звукоизоляционные показатели секций (до 29 децибел).
- Проем хорошо герметизируется.
- Секции возможно устанавливать в гаражах с различным размером проема.
- Повышенная защита от возгорания.
Для самостоятельного монтажа таких ворот потребуется следующий инструментарий:
- плоскогубцы;
- комплект гаечных ключей;
- слесарный молоток;
- заклепочный пистолет;
- электродрель с комплектом сверлильных инструментов;
- измерительная лента;
- уровень;
- перчатки, очки (для защиты рук и глаз);
- перфоратор;
- строительный нож;
- маркер.

Алгоритм установки:
- Разметка точек закрепления горизонталей и вертикалей.
- Выставление и фиксация вертикальных элементов.
- Установка несущих элементов с расположенной внизу ламели.
- Сборка полотна с расположенной внизу секции.
- Настройка расположенных вверху кронштейнов.
- Закрепление управляющих узлов, засовов, ручек.
- Монтаж пружин.
- Подведение и подсоединение электрического привода.
- Установка ограничителей.
- Проверка хода.
Прямо после установки конструкции рекомендуется отрегулировать ее. В дальнейшем проводите периодическую проверку на отсутствие провисаний, перекосов. Это позволит увеличить срок эксплуатации.

Ресурс.
Несмотря на более внушительный вид, ресурс работы заявляемый заводом Алютех, у торсионных пружин такой же как и у растяжения – 25 000 циклов подъема-опускания ворот. По нашему опыту, ворота установленные пять –семь лет назад, работают также успешно, как и с торсионами. Правда, справедливо это только, если они грамотно установлены, и используются в спокойном, «бытовом» режиме, 4-6 подъемов-опусканий в день.
Аргументом в пользу торсионных пружин будет тот факт что, на промышленные ворота устанавливают только их. «Промки» и пружины растяжения вещи не совместимые. Это косвенно говорит о меньшем ресурсе последних.
Так же опционально можно увеличить ресурс торсионных пружин до 35, 50, 75 и 100 тыс. циклов, но только для промышленных ворот.
Виды автоматических ворот
Секционные ворота
Это универсальный тип, подходящий и для установки на предприятии, и для частного применения, для дома или установки в гаражных помещениях, Отличаются высокой надежностью, защищены от воздействий неблагоприятных погодных условий. Могут управляться как автоматически, так и вручную, а механизм рассчитан на несколько открываний в день и обладает большой устойчивостью к серьезным нагрузкам, что позволяет использовать ворота в промышленных помещениях. Функционал ворот может быть расширен благодаря возможности установки в них дополнительных дверных и оконных проемов. Установка автоматики на секционные ворота требует соответствия типу подъема ворот – низкий, высокий или стандартный, наклонный или вертикальный.
Для ворот такого типа подходят цепные и вальные приводы. Вальные приводы более мощные, они необходимы, когда полотно имеет большой вес, а также в случае нагрузок высокой интенсивности. Цепные приводы больше применяются в быту, подходят для ворот с низким и стандартным типом подъема.
Подъемно-поворотные ворота
Оснащены подъемно-поворотным механизмом и могут быть установлены в помещении любого типа, так как отличаются простой эксплуатацией и оптимальным соотношением цены и качества. Их полотно представляет собой цельную конструкцию, занимающую все пространство проема. Принцип открывания прост – перемещаясь по специальным направляющим, ворота меняют свое положение с вертикального на горизонтальное. Поэтому такой тип ворот подразумевает отсутствие каких-либо препятствий на пути движения полотна.
В сравнении с другими типами, подъемно-поворотные ворота не так хорошо сохраняют тепло, а установка подходит только для прямоугольных проемов. Если же произойдет частичная поломка, потребуется полная замена ворот. Кроме того существуют ворота подъемно-гильотинного типа, — в данном случае полотно перемещается по принципу гильотины снизу-вверх по внешней стене помещения.
Откатные или сдвижные ворота
Такой тип конструкции отличается высокой надежностью, стойкостью к погодным воздействиям, и лучше всего подходит для установки в условия ограниченного пространства. Ворота оснащены прочным механизмом, способным выдерживать большие нагрузки.
Автоматика для откатных ворот обычно устанавливается на специальную площадку для привода или фундамент. При выборе привода стоит учитывать вес ворот.
Распашные ворота
Конструкция отличается бесшумностью и легкостью открывания и закрывания, но требует свободного пространства. Теплоизоляция поддерживается за счет пластикового профиля, закрывающего просветы в конструкции. Для распашных ворот производятся приводы двух видов – линейные и рычажные (электромеханические, гидравлические).
Рычажные не боятся мороза, оснащены рычагом, могут открываться и наружу и внутрь. Линейные требуют меньше места для монтажа. При подборе автоматики необходимо учитывать площадь полотна ворот. Кроме того, автоматику распашных ворот необходимо содержать в чистоте, особенно в зимний период, очищать от снега.
Автоматические роллетные или рулонные ворота
Представляют собой гибкое полотно, скатанное в рулон. Конструкция отличается повышенной теплоизоляцией, упругостью и прочностью, большими размерами (бывают шириной до 11 метров, и высотой до 9 метров). При этом ворота достаточно компактны, благодаря способности скручиваться в рулон. Подходят для частного применения, на участках, в домах, гаражах и для крупных помещений, предприятий.
Могут быть смонтированы снаружи помещения и внутри него, а также в оконные проемы — так они не только заменят собой ставни, но и обеспечат безопасность, защищая от проникновения (актуально для жителей частных домов и коттеджей, или живущих на первом этаже здания).
Подготовительные работы
После замера проема монтируют направляющие рельсы
Собрать гаражные секционные ворота Алютех по силам человеку, имеющему элементарные навыки в работе с бытовыми инструментами. Главной проблемой является не процедура сборки, а основание. Критерия тут два — правильность геометрии и плотность, так как практически все гаражи сегодня строятся из газобетона.
Пошаговый процесс подготовки к установке своими руками:
- Провести замеры по вертикали, горизонтали и диагонали. Показатели по соответствующим линиям не должны различаться более чем на 5 мм.
- Если стены толстые и сделаны из плотного материала, выровнять их цементным раствором, используя маяки и правило.
- При необходимости, если несущие конструкции тонкие, неровные и непрочные, сварить рамную конструкцию из наружного и внутреннего контура. Зафиксировать ее анкерными болтами увеличенной длины.
- Заполнить щели цементным раствором или монтажной пеной с нулевым расширением.
Гаражные ворота имеют толщину 40-45 мм, благодаря чему они не промерзают. Исходя из этого, необходимо избавиться от боковых просветов. Сама конструкция будет подогнана под существующий проем, если он сделан не под стандарт.
Для изготовления каркаса нужно использовать профильную трубу с толщиной стенки не менее 6 мм. Легкость конструкции кажущаяся, ощущение возникает из-за легкости ее передвижения, которую обеспечивают механизмы балансировки.
Крепление вертикальных направляющих
На следующем шаге монтажа гаражных секционных ворот устанавливают металлические вертикальные направляющие. Собирают каркас, по которому смещается полотно
Специалисты уделяют повышенное внимание этому этапу работы, поскольку от него зависит легкость подъема конструкции
Горизонтальное и вертикальное положение изделий контролируют строительным уровнем. Если требуется повышенная точность, пользуются лазерным нивелиром. Все детали между собой вымеряют рулеткой. Ориентиром служат ярко блестящие полосы: если мастер отклонится от заданного размера, то это сразу станет заметно. Ход сборки:
- На стенах по бокам от проема ставят метки. Для этого от пола вверх отступают 100 см и карандашом чертят линию. Из несущих профилей сооружают раму, которую устанавливают во входное отверстие гаража. На детали надевают резиновые уплотнительные ленты, их прочно вставляют в пазы.
- На место стыков перемычки и стоек отрезают лишний кусок эластичного уплотнителя. Достаточно удалить на углах маленький квадрат, именно в том участке, где две полосы накладываются друг на друга. Чтобы сделать это ровно, материал размечают карандашом и отрезают ножницами или ножом.
- После удаления излишков ленты монтируют верхний профиль и вертикальные направляющие. Они оснащены отверстиями, поэтому остается ровно подогнать детали и скрепить их шурупами. Устанавливают временную монтажную перемычку, которая усиливает жесткость изделия и удерживает заданные параметры.
- Собранную конструкцию монтируют с сильным прижимом к стене. Внутренний размер каркаса должен точно совпасть с величиной проема. Специалисты допускают отклонение на 2 мм. В процессе работы уровнем контролируют горизонталь и вертикаль рамы. Конструкцию фиксируют струбцинами там, где на уровне 100 см на стене стоят отметки.
- Вверху опор монтируют ролики. На корпусе стоек есть отверстия для саморезов, поэтому мастер, воспользовавшись перфоратором, сверлит дыры именно в этих местах и совмещает край стойки и колес. Через широкое отверстие в направляющем устанавливают пластмассовый дюбель 5×1 см. Шуруповертом туда закручивают шурупы.
- Каждую опору закрепляют с обоих боков. Крепежные пластины Г-образной формы устанавливают снаружи направляющих. Для них со стороны боковой поверхности производители заранее проделали отверстия. Мастер подгоняет конструкцию до нужного расположения между собой деталей и в одну пластину закручивает 2 шурупа. Этот элемент, зафиксированный на опоре, монтируется к стенке на дюбели и саморезы.
- Изнутри опор проделывают аналогичную работу. В отверстия профиля ставят шурупы с пластиковыми заглушками и вкручивают. Устанавливают перемычку вверху проема. Временное монтажное приспособление и струбцины снимают.
Для стоек слишком большое отклонение недопустимо, иначе секционные ворота не смогут эксплуатироваться должным образом, а работу придется переделывать. Процесс монтажа опор постоянно регулируют уровнем и рулеткой.
Расчет размеров
Чтобы правильно установить ворота, придется заранее рассчитать все необходимые размеры. При этом измеряются следующие параметры:
Высота с шириной. В этом случае определяют габариты воротной конструкции
Также при проведении замеров обращают внимание на то, чтобы плоскости располагались параллельно друг к другу. Стенки конструкции должны располагаться в вертикальном положении, а перемычка с нижней гранью — в горизонтальном
Для проверки правильности положения элементов пользуются отвесом или строительным уровнем.
Размер перемычки. При определении этого параметра занимаются измерением расстояния от края проема до перекрытия потолка. Оптимальный размер составляет 350-550 миллиметров. В такие проемы удастся установить наиболее надежные и качественные модели ворот со специальной подъемной системой.
Степень вхождения конструкции внутрь помещения. Некоторые не обращают внимания на этот параметр и не определяют его размеры. При расчете величины учитываются особенности системы подъема ворот, а также габариты проема.
Также определенные расчеты проводятся перед установкой привода конструкции. Прежде чем поставить его, определяют глубину помещения, которая должна находиться в диапазоне 3-4 метров. Если здание слишком маленькое, придется устанавливать более компактный привод осевого типа.
Шаг 1. Замеры
Первое, что необходимо сделать перед тем, как установить секционные ворота самому, — произвести замеры проема
Важно, чтобы все расчеты были выполнены максимально точно, потому что ошибка даже в несколько миллиметров грозит серьезными последствиями — перекосом конструкций, их некорректной работой и быстрой поломкой
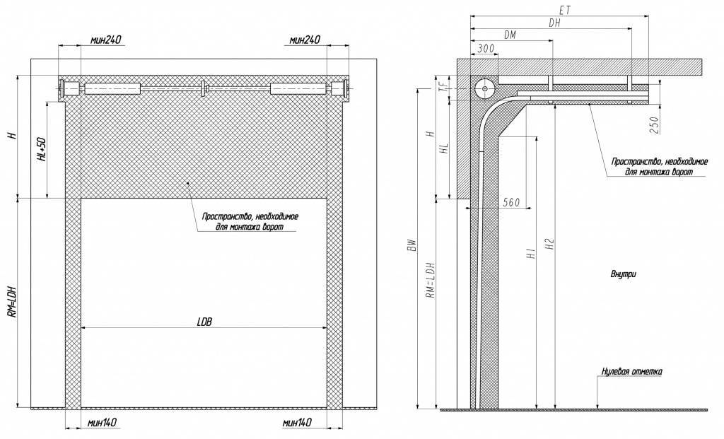
Чтобы правильно смонтировать подъемные ворота, необходимо определить ширину и высоту проема, глубину помещения, высоту притолоки, а также ширину пристенков (рис. 1).
рис. 1
Ширину проема измеряют по трем точкам (рис. 2). Для обеспечения беспрепятственного въезда в гараж и выезда из него данный показатель должен превышать ширину автомобильного кузова с учетом боковых зеркал на 60-80 см.
рис. 2
Высота проема также определяется по трем точкам (рис. 3). Она должна быть на 20-30 см больше высоты автомобиля. Если же у ворот планируется ручное управление, то — от 35 до 50 см
Кроме того, важно учесть, предусмотрены ли на крыше машины антенна или дополнительный багажник
рис. 3
Чтобы воротное полотно при открытии могло беспрепятственно разместиться под потолком и при этом хватило места для установки автоматики, важно предусмотреть достаточную глубину гаража. Вычисляется она по следующей формуле: высота проема + 100 см
Следующим шагом рассчитываем высоту притолоки (перемычки), которая важна для последующей корректной установки направляющих профилей и пружинного механизма:
- Если площадь ворот не превышает 8 м², то высота притолоки должна быть в пределах 130-500 мм.
- Если площадь воротного полотна более 8 м² — не менее 210 мм.
Чтобы обеспечить возможность надежно закрепить вертикальные направляющие, необходимо измерить боковые пристенки. Их ширина должна превышать 125 мм.
Подъёмно-секционные ворота: инструмент, материалы и устройство
Для начала стоит разобраться, какими достоинствами и недостатками обладают подобные механизмы. Среди основных положительных качеств можно назвать:
- отсутствие необходимости дополнительного места;
- возможность утепления ворот;
- прочность конструкции находится на достаточно высоком уровне;
- есть вариант установки автоматики, позволяющей проводить открытие и закрытие с пульта ДУ.
Но при всех достоинствах, есть и недостатки, среди которых:
- невозможность установки в проёмы с непрямыми углами;
- необходимость учёта веса утеплителя при вычислении прочности ворот;
- сложности, возникающие при монтаже.
Можно приобрести готовое изделие, но лучше изготовить ворота самостоятельно ФОТО: diadoors.com
Что потребуется для монтажа подъёмно-секционных ворот
Первым делом, нужно составить чертёж будущих ворот. Можно это сделать самостоятельно, однако проще будет взять готовый проект из интернета. Подобной информации в сети довольно много. В качестве материала лучше всего, естественно, использовать металл
Однако, обращая внимание на то, что вес не должен быть большим, логичнее применить профильную трубу, имеющую хорошие прочностные характеристики. Также следует подумать о материале для наружной и внутренней отделки ворот, утеплителе, шарнирах и роликах. Внешний вид может быть довольно разнообразным ФОТО: koffkindom.ru
Внешний вид может быть довольно разнообразным ФОТО: koffkindom.ru
Инструмент, который потребуется для изготовления
Здесь всё будет зависеть от того, с чем привык работать мастер. Однако сейчас стоит назвать самый распространённый инструмент, который будет использован для изготовления подъёмных ворот. Для работы потребуется наличие:
- УШМ (болгарки);
- набора гаечных ключей, отвёрток и шуруповёрта;
- сварочного аппарата;
- карандаша, рулетки, монтажного или лазерного уровня;
- дрели и свёрл к ней.
Когда всё будет подготовлено, можно приступать к работе.
Без этого инструмента обойтись не удастся ФОТО: atvarmor.ru
Статья по теме:



































