Размеры створок
Прежде, чем покупать профнастил, необходимо определиться с размерами будущих створок. Обычно при выборе ширины ворот ориентируются на габариты автомобиля, который будет проезжать через ворота.
Для легковых автомобилей достаточно будет ширины ворот в 400 см., а для проезда грузовика – 600 см. Исходя из данных параметров рассчитывается ширина каждой створки. Высота ворот выбирается на усмотрение хозяина и обычно составляет 200-250 см.
Полезно знать! Размеры ворот желательно делать с небольшим запасом, так как в будущем возможно приобретение транспорта с большими габаритами по сравнению с авто, габариты которого учитывались при определении размера ворот.
Рекомендуется также составить чертеж будущей конструкции с указанием всех размеров.
Крепление профилированного листа
В простых конструкциях профнастил монтируется с внешней стороны распашных ворот. Более сложный и тяжелый, но красивый и аккуратный вариант предусматривает обшивку с двух сторон. Накладка листов производится с обязательным перекрыванием соседних полотен на одну общую волну.
Закрепление осуществляется при помощи специальных кровельных саморезов под шестигранную биту с шайбой и резиновой прокладкой. При этом вкручивание крепежа производится не только в раму по периметру, но и во все горизонтальные и диагональные перемычки.
Крестообразные перемычки.
Рекомендуемый шаг между крепежными метизами — 80-100 мм. Вместо саморезов можно использовать заклепки с возможностью установки с одной стороны при помощи специального инструмента. Это обойдется дороже, но позволить избежать коррозии крепежа и возможного образования ржавых потеков со временем.
Подготовительные работы
Выбираем материал, из которого будут сделаны столбы. Идеальным будет профильная толстостенная труба большого сечения – до 10 сантиметров. В качестве столбов можно использовать балку-швеллер толщиной до 15 сантиметров. В этом случае вам не придется ставить на столбы верхние заглушки. Но придется делать серьезное бетонирование ямы, куда устанавливается швеллерная балка, что удорожает работы.
Начинаем у установки воротных столбов. Оттого, насколько точно и качественно будет выполнен этот этап, зависит прочность, долговечность и красота ворот-самоделки.
Размечаем места для установки опор. Копаем ямы лопатой или садовым буром на глубину до одного метра. Обеспечиваем опорам уплотненную песчаную подушку (15 – 20 сантиметров). Устанавливаем по уровню, строго вертикально, столбы и бетонируем их. Часто для того, чтобы столб не расшатывался, к основанию приваривают металлическую пяту. За счет этого увеличивается площадь опоры, а значит, и надежность всей конструкции.
О частичном бетонировании столбов не может быть и речи! Цените свой труд, чтобы не пришлось переделывать все заново.
Выполняем сплошное бетонирование: одна часть цемента марки 400, две части мытого строительного песка и 4 части щебня мелкой фракции. Его можно заменить мытым гравием. Воды добавляем немного – половину от количества цемента. Это придаст необходимую прочность бетону. Замесить раствор можно без бетономешалки – для двух ям много не понадобится. Пока бетон набирает твердость, занимаемся сварными работами.
Типы конструкций из профлиста
Калитка из профнастила может быть расположена рядом или находиться отдельно от ворот. Калитки, встроенные в створку ворот, уже не встречаются из-за невысокой эстетичности.
Конструкция калиток и ворот может быть разной:
- простой прямоугольный каркас с горизонтальными, косыми, перекрещенными перемычками; может быть украшен сверху или снизу сварной декоративной решеткой;
- каркас сложной оригинальной конструкции из кованого металла на фоне профнастила.
При высоком заборе над калиткой высотой более двух метров может быть установлена поперечная перекладина, также обшитая профлистом; может быть установлен небольшой навес, защищающий входящего от снега и дождя в момент открывания замка. Опорные стойки могут быть металлическими или выложены из кирпича в зависимости от общего дизайна ограждения.
По способу открывания калитки традиционно делают распашными, иногда встречаются и откатные с автоматическим открыванием.
Варианты ворот из профнастила дают еще больший простор для дизайнерского творчества: откатные и распашные, с коваными элементами, со вставками из поликарбоната и древесины.
Самая простая распашная калитка для забора своими руками, доступная даже начинающему домашнему мастеру, имеет простую конструкцию прямоугольной формы с металлическими опорами. Ниже описаны ее изготовление и монтаж.
Сборка каркаса, рамки
Перед соединением деталей проведите повторно замеры проема под ворота, калитку, чтобы успеть исправить обнаруженные неточности.
Технология создания каркаса выглядит так:
- Металл разрезают болгаркой на заготовки нужных размеров.
- Очищают от ржавчины щеткой по металлу.
- Верхние углы сваривают под углом в 45 градусов. Так зимой не будет затекать вода. Нижние части разрешается приварить встык.
- Детали сначала лучше наживить, проверить ровность по уровне. После чего заварить постоянным сплошным швом.
- Если того требует конструкция, усиливают каркас дополнительными уголками, поперечинами.
Для усиления каркаса подойдут несколько способов:
- На рамку наваривается уголок. Применяется под створки шириной до 1,5 м. Берется сплошная косынка или распорка (угловая перемычка). Чем большей ширины берется уголок, тем жестче получится каркас.
- Создается рамка из труб меньшего сечения в середине каркаса или сверху него.
- Монтируются перемычки поперек каркаса или по диагонали. Для калитки хватит одной горизонтальной перемычки внутри каркаса. Для усиления ворот по всей длине рамки приваривают диагональную перемычку.
Сварные швы на готовой рамке зачищаются, обезжириваются.
Изготовление каркаса створок
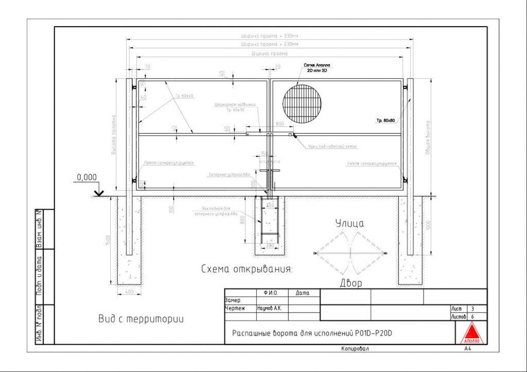
Пока сохнет бетон, приступают к изготовлению каркаса будущих створок. Чаще всего для этого используется профильная труба. По предварительно задуманным размерам нарезают болгаркой профильную трубу на отрезки, которые затем соединяются в прямоугольную раму с помощью сварки.
При изготовлении рамы необходимо следить, чтобы угла были строго прямыми, для чего используется угольник. Желательно каркас будущей створки перед сваркой полностью собрать на земле, а не отдельными частями. Это значительно упростит контроль ровности углов.
Когда каркас сварен, его дополнительно укрепляют по углам стальными уголками. Чтобы придать раме большую жесткость, высоту каркаса разделяют на 2 или 3 ровные части и приваривают горизонтальные параллельные перемычки. Можно укрепить стальным уголком и места соединения рамы и перемычек. После этого привариваются воротные петли.
Совет! Не менее популярен и другой способ упрочнения рамы. Для этого по центру каркаса приваривается горизонтальная перекладина, от углов которой по диагонали отходят еще перемычки. Можно выбирать любой способ для упрочнения каркаса, так как оба они заслуживают внимания.
Аналогичным образом изготавливается каркас для будущей калитки. В случае, если калитка будет располагаться непосредственно в створке, рама собирается несколько иначе. В сваренной прямоугольной раме створки необходимо приварить продольные и поперечные перемычки, которые и будут выступать в качестве рамы калитки. Как правило, калитка делается размером 80х180 см.
Процесс установки распашных ворот
Прежде чем сделать крепкие ворота из профнастила своими руками, следует подготовить чертеж с указанием точных размеров. При этом необходимо учесть вид автотранспорта, который будет проезжать через возведенную конструкцию, а также наличие калитки.


Кроме тщательного составления чертежа, потребуется заранее закупить и обработать материал для работы, а также приготовить необходимые инструменты:
- профильные трубы разного сечения;
- металлические уголки;
- профиллированные листы;
- саморезы, болты, заклепки;
- цемент;
- грунтовка и краска по металлу;
- электроинструменты;
- сварочный аппарат.
Перед началом работ профильные трубы следует осмотреть на наличие дефектов, зачистить коррозийные места наждачной бумагой и нарезать на части, в соответствии с размерами, указанными в чертеже конструкции.









Установка опоры
В случае, если ворота из профнастила требуется установить на забор с готовыми металлическими столбами, то каркас ограждения можно зафиксировать прямо на них. Чтобы это проделать, к существующим опорам привариваются петли, и собранная стальная конструкция вешается на них.
Если же каркас приходится возводить с самого начала, процесс установки столбов выглядит другим образом:
- Измеряется требуемое расстояние и ставится разметка с учетом расчетов в чертеже.
- Роются 2 округлые ямки под фундамент, ширина которых составляет около полуметра, а глубина – не менее одного метра.
- Дно ямок засыпается песком или мелким щебнем и тщательно утрамбовывается.
- В подготовленные лунки ставятся опорные столбы строго в вертикальном положении, добиться которого можно при помощи строительного уровня. Их можно временно зафиксировать кусками арматуры, чтобы они не отклонялись в стороны.
- Столбы заливаются бетонным раствором.
Для полного затвердевания смеси необходимо выждать несколько недель, после чего приступать к дальнейшему выполнению установочных работ.
Изготовление рамы





Раму для конструкции изготавливают на ровной поверхности, вооружившись сварочным аппаратом для соединения заранее нарезанных заготовок из профильных труб.
Для надежной фиксации частей на внутреннюю стыковку каркаса приваривают металлические уголки, а также дополнительно две поперечные перекладины. Затем следует закрепить на рамную конструкцию навесы и засовы.
После того как рама готова, необходимо тщательно отшлифовать сварочные швы, весь каркас обезжирить с помощью растворителя, загрунтовать и покрыть краской.
Установка обшивки

Дождавшись полного высыхания краски на раме, можно приступать к фиксации на нее обшивки из заранее нарезанных листов профнастила. Они крепятся к каркасу конструкции при помощи саморезов или специальных заклепок. При этом, лучше их устанавливать в местах углубления материала, таким образом, они будут менее заметными.
После того, как обшивка из профиля своими руками установлена на раму, конструкция вешается на петли и производятся завершающие этапы работы, такие как монтаж замков на ворота и крепление украшающих элементов.
Виды конструкции
Существует несколько разновидностей полотен, которые производятся из профлиста и монтируются в гараж. Каждый вариант обладает индивидуальными техническими параметрами и отличается способом открытия, внешним видом, нюансами установки.
Распахивающиеся
Распашная конструкция состоит из двух створок, которые открываются в разные стороны. Использование данного вида помогает максимально сократить нагрузку на фиксирующие опоры. Чем меньший вес будет давить на фиксирующие элементы, тем проще будет избежать проблем, связанных с перекосом конструкции.
Раздвижные
В случае отсутствия большого количества пространства рекомендуется монтировать раздвижные ворота. Сплошная створка отодвигается в сторону и не занимает место. Возможность подключить автоматику позволяет упростить эксплуатацию конструкции. Недостатком раздвижных ворот является необходимость соблюдения ряда особенностей при монтаже, включая следующие:
Важно правильно определить противовес, поскольку в противном случае полотно перекосится и не будет функционировать.
Потребуется залить надежный фундамент, который сможет выдержать тяжелую опору.
В процессе монтажа возникнет необходимость приваривания ворот, что вызовет сложности при отсутствии соответствующих навыков.
Сдвижные
Ворот сдвижного типа объединяют в себе ряд характеристик распашных и раздвижных. Конструкция состоит из двух створок, которые открываются вдоль забора в противоположные стороны. Главными достоинствами данной разновидности являются дешевизна и простота монтажа. Створки не создают высокую нагрузку на опорные столбы, но для надежности рекомендуется установить пару фиксаторов.
Кованые
Ворота с элементами ковки используются для придания полотну декоративных характеристик. Добавить элементы можно поверх любого типа конструкции. Вариативность дизайнерского исполнения позволяет подобрать индивидуальный вариант, который впишется в окружающий ландшафт.
Определение размеров
Проводится с учетом таких параметров:
- Ширина проема рассчитывается по размерам автомобиля с боковыми зеркалами и добавляется один запасной метр.
- Не нужно забывать и про габариты опор. При установке рядом стоящей калитки столбов будет 3.
- Потребуется оставить небольшие зазоры между опорами и рамкой. Нужно учесть и размер фурнитуры.
- Высота ворот подбирается под параметры профнастила, чтобы не добавлять куски. При стандартной длине листа в 2 м высота ворот с отступом от грунта составляет 2,2‒ 2,5 м.
- Зазор от грунта до створок нужно делать не меньше 15 см, чтобы зимой при обледенении дороги сооружение работало без проблем. Если хозяева боятся проникновения на участок чужих животных, то на время лета крепят съемную планку.
- Рекомендуемая ширина проема под ворота ‒ от 4,5 до 5 м, под калитку ‒ 1,2 м.
Достоинства и виды ограждений из профнастила

Самостоятельно изготовить ворота можно из различных материалов, их выбор будет зависеть от суммы предполагаемых расходов, выбранного дизайна и мастерства хозяина участка. Многие из владельцев загородных строений при этом отдают свое предпочтение профиллированному листу, и это неудивительно, ведь выполненные из профнастила не только забор, но и ворота, обладают многими достоинствами:
- экономичность;
- прочность и долговечность;
- простота в изготовлении;
- легкость;
- большое разнообразие декора.
По способу открытия ворота из профиля разделяются на распашные и откатные. Каждый из данных видов имеет свои преимущества, а также и недостатки в использовании.
Данная разновидность ворот из профнастила наиболее проста для самостоятельной установки. Распашная конструкция представляет собой две стойки, на которые фиксируются створки, обшитые металлическим профилем. Готовые ворота должны двигаться плавно, безо всяких препятствий в ходе использования.
Распашные створки можно сделать таким образом, чтобы они открывались вручную либо в автоматическом режиме. При этом электропривод встраивается в данный вид ограждения в основном на промышленных территориях, где идет активное движение транспортных средств.
Распашные ворота доступны и просты в установке, однако, у них имеется и существенный недостаток – необходимо наличие свободного пространства, чтобы полностью открыть створки.
Откатные ворота


Самыми удобными в использовании считаются откатные ворота, так как более функциональны.
Кроме того, после установки такого ограждения у владельца территории будет отсутствовать необходимость расчищать место от снега для открытия створок в зимний период года. Однако, несмотря на существенные достоинства, которыми характеризуются откатные ворота перед распашными, у них имеются и недостатки:
- установка обойдется дороже;
- закладка фундамента должна происходить по более сложной схеме;
- требуется приобретение специальных комплектующих материалов.
Такое ограждение в основном оборудовано автоматикой, вручную открывать и закрывать данную разновидность ворот крайне неудобно.
Крепление к каркасу створок профнастила
Обычно ширина листа профнастила составляет 110 см., причем 10 см. будет потрачено на перекрытия. Исходя из этого рассчитывает и количество листов. Так, для ворот шириной в 400 см. на одну створку понадобится 2 листа профнастила. В случае, если ворота будут обшиваться с двух сторон, количество профнастила удваивается.
Крепление к каркасу створок листов профнастила ничем не отличается от установки забора из профнастила. Для крепления используются шурупы с шестигранной головкой либо специальные заклепки. Желательно цвет крепежей выбирать в тон профлистов.
Крепление профлистов необходимо производить в каждую внутреннюю волну (прилегающая к каркасу), что повысит прочность всей конструкции. Чтобы легче было производить крепление, предварительно можно проделать в раме и в профлистах отверстия.
Рама калитки обшивается аналогичным образом.
Стальная конструкция ворот декорируется коваными элементами, закупленными в магазине. Последним штрихом в создании безупречного образа могут стать светильники в кованых корпусах. Все элементы крепятся посредством электродуговой сварки.
После завершения всех работ, устанавливается в калитку замок, ручка, а в створках ворот засовы. Каких-либо рекомендаций по выбору замков и засовов нет, так как здесь все зависит от предпочтений и фантазий хозяина.
Таким образом, следуя несложной инструкции по установке ворот из профнастила можно всего за пару дней получить надежные и красивые ворота. Главное при выполнении работ помнить, что:
- ворота следует устанавливать в одной плоскости с забором;
- ворота и калитка оснащается удобными ручками и надежными запирающими устройствами;
- ворота должны гармонировать с забором не только по цвету, но и вписываться в окружающий ландшафт.
Этапы возведения откатных ворот
Как и в случае с обычными распашными воротами, возведение откатной конструкции начинается с создания проекта, чертежа и необходимого материала для работы. Однако, при этом следует учитывать, что подготовительный этап, как и само ограждение данного типа, сложнее и обойдется дороже.

В чертеж откатных ворот обязательно должны быть включены следующие параметры:
- высота конструкции;
- ширина проема для ворот, учитывая противовес, и без него;
- размеры всех перемычек.
Помимо материала для установки данного ограждения, необходимо заранее приобрести специальные комплектующие элементы:
- направляющая балка;
- роликовые каретки;
- уловители;
- концевой ролик;
- плата, которая сдерживает качание конструкции.
Если планируется устанавливать автоматическое управление воротами, то следует дополнительно купить определенный комплект техники, в который входят фотоэлементы, редуктор и монтажное основание. Приобрести такой набор можно в специализированных магазинах.




Возведение опорных столбов
Для возведения столбов для откатных ворот можно воспользоваться той же схемой действия, что и в случае с распашной конструкцией. В качестве опоры могут использоваться:
- деревянный брус;
- бетонный столб;
- швеллер;
- металлическая труба.
Чтобы конструкция прослужила длительный период, чаще всего закладывают швеллер. Он выступает своего рода фундаментом для опор и должен быть на том же уровне, что и поверхность почвы, чтобы транспорту было удобно заезжать.

Соединение рамы
Для того, чтобы изготовить рамный каркас, потребуются профильные трубы с сечением 60х30 мм, а для удерживающих перемычек – 40х20 мм. Материал заранее режется с помощью болгарки на части, в соответствии с размерами на чертеже, обезжиривается, грунтуется и красится. После чего соединяется сварочным аппаратом наружный каркас.
Затем на раму фиксируются удерживающие перемычки на расстоянии немного меньшем, чем ширина профлиста, так как именно на них будет крепиться обшивка.
Установка конструкции и обшивка
Чтобы установить каркас, сначала необходимо на фундамент выставить ролики таким образом, чтобы дальний из них не выбивал заглушку при закрытии ворот. Затем на них ставится готовая рама, которую требуется выровнять до необходимого положения. Если все установлено должным образом, то платформы тележек, концевой ролик и уловители привариваются к конструкции.
После того как каркас зафиксирован, он обшивается листами профнастила с помощью саморезов или заклепок. Если предусмотрено в конструкции автоматическое управление, его можно установить на готовые створки.
Ворота из профлиста, выполненные своими руками, можно установить на даче, на промышленной территории и на приусадебном участке. Это достаточно экономичная и долговечная разновидность ограждения. К тому же, широкая гамма выпускаемых расцветок позволяет выбрать наиболее подходящий вариант для любого участка.





































