Проекты одноэтажного дома с мансардой: чертежи и фото
В одноэтажных домах мансарда чаще всего выступает в качестве мастерской или кабинета. Нередко на этом уровне располагают спальню, что обусловлено комфортным расположением в помещении с невысокими потолками, а также дополнительной изоляцией и прекрасным видом на звездное небо из окон. Мы подобрали 10 лучших проектов домов с мансардой, ниже представлены бесплатные чертежи и фото, а также их описание.
Готовые проекты домов с мансардой 8 на 10
Проект №1. Проект этого дома предусматривает функциональное помещение на мансардном уровне, в котором размещена спальня, санузел и две дополнительные комнаты, которые по своему усмотрению можно обустроить под гостиные или детские. Уютный каркасный дом предполагает выполнение из кирпича и керамзитобетона. Большие окна делают внутреннее пространство дома хорошо освещенным. Здание полностью соответствует всем требованиям жилого дома.
Проект №2. Уютный коттедж в эко стиле с большой столовой-гостиной на первом этаже. Проект позволяет разместить на мансарде три комнаты, санузел и небольшой холл, а также выход на балкон. Предусмотрен удобный широкий лестничный узел. На первом этаже располагается также второй выход на веранду. Такой дом прекрасно подойдет большой семье для комфортного загородного отдыха.
Проекты домов с мансардой 9 на 9
Проект №3. Небольшой и в то же время функциональный одноэтажный дом с гостиной-столовой и кабинетом на первом этаже. Пространство мансарды занимает три смежные комнаты и санузел. В простую форму здания вносят разнообразие эркер в гостиной и мансардное окно с плоской кровлей. Дом отлично подойдет как для отдыха, так и для работы.
Проект №4. Компактный дом в деревенском стиле. На первом этаже расположены гостиная с обеденной зоной, кухня и туалет. На мансарду можно подняться по удобной широкой лестнице. Здесь предусмотрены три спальни и ванная комната.
Проект №5. Функциональный одноэтажный дом с мансардой подходит для большой семьи. Проект предусматривает просторную столовую, кабинет, санузел и кухню на первом этаже, а также три смежные комнаты и ванную на мансардном уровне. Форму дома дополняет эркер на первом этаже в гостиной-столовой и выход на балкон, а также окно с еще одним дополнительным балконом и двускатной крышей.
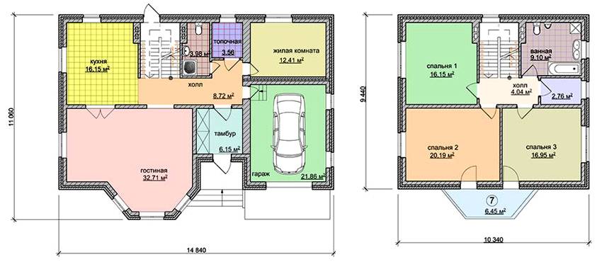
Проекты домов с мансардой 9 на 10
Проект №6. Бюджетный проект дома с мансардой отлично подойдет для жизни и отдыха. На первом этаже расположена большая вместительная гостиная (48,6 м2), которая может одновременно выступать и в роли столовой. На мансарде – три спальни, санузел и просторный балкон.
Проект №7. Простой одноэтажный дом с функциональной планировкой предназначен для семьи из пяти человек. Простая форма дополняется эркером и балконом. Вход через прихожую ведет в холл, где расположены лестница на мансарду и двери во все помещения первого этажа: гостиная, санузел, кухня и детская. На мансардном уровне – три спальни, просторная ванная комната, а также две гардеробные, одна из которых примыкает к большой спальне.
Проекты домов с мансардой и гаражом: советы при постройке
Французские окна в дизайне двухэтажного дома
Чтобы надстроенная комната не покосилась, а стены, потолки не трескались и не протекали нужно соблюдать некоторые правила:
- стены нужно устанавливать исключительно на несущие опоры. Для выступающего помещения за пределы стен основного здания, нужны дополнительные опоры;
- спасением от сильного ветра станут несущие конструкции, выполненные из особо прочных материалов – дерева, бетона, металла;
В проекте домов с мансардой и гаражом необходимо уделить особое внимание прочности конструкции
- помещение полностью (крыша, пол, стены) нужно утеплять негорючими материалами;
- окна желательно располагать на южной стороне дома;
- высота потолков должна быть такой, чтобы человек мог ходить, не сгибаясь в три погибели.
Великолепный особняк в терракотовом цвете
Самые распространенные ошибки при строительстве:
- слой утеплителя укладывается с учетом климатической зоны;
- зазоров в утеплителе не должно быть;
- не рекомендовано применять утеплитель для горизонтальных поверхностей;
- в местах, где утеплительный материал примыкает к стенам, его контур должен быть замкнут.
Проект одноэтажного дома в современном стиле с мансардой и гаражом на 2 машины
План мансардного этажа
Учитывая все особенности построек с мансардами, приходится констатировать, чтобы строения надежно служили долгие годы, их должны строить специалисты.
Варианты проектов для создания больших построек
Сегодня существует множество вариаций готовых проектов домов и коттеджей с мансардой и гаражом. Все они отличаются габаритами и внутренним наполнением. Существуют варианты одноэтажных и двухэтажных строений, помещений с цокольным этажом, винным хранилищем или баней.

Для строения дома с мансардой и гаражом можно воспользоваться готовым проектом
Дома с площадью более 100 м² намного проще обустроить. Фото планов строений наглядно отображают множество различных вариаций, в том числе это проекты гаража и мансарды на 2 машины. Мансардный этаж будет более вместительным благодаря большой свободной площади. Здесь существует возможность организовать несколько жилых комнат, обустроить спортзал, поставить бильярдный стол или создать просторную гостиную. Гараж, который может иметь разные габариты, несложно пристроить с любой стороны сооружения. При этом в обязательном порядке следует учитывать эстетику дома, чтобы пристройка не искажала его пропорции.
Возведение габаритного строения можно осуществлять по проекту одноэтажного дома с гаражом на 2 машины. Особенно это актуально, когда в семье насчитывается два автомобиля. Над гаражом можно организовать зимний сад, домашний кинотеатр или игровую, что наглядно отображено на фото гаража на 2 машины с мансардой.
Можно придать строению стильность и оригинальность, заменив стандартные стены мансардного этажа стеклянными. Также владельцы двух и более автомобилей по достоинству оценят проект дома с гаражом под домом, расположенным на первом этаже. Жилые комнаты в этом случае находятся в мансардном помещении, которое планируется исходя из личных предпочтений хозяев дома. Различные варианты можно увидеть на фото проектов гаража с жилой мансардой.
Вариации проектов небольших домов: фото примеры
Проекты домов с мансардой до 100 м² требуют более внимательного подхода при обустройстве жилого помещения и гаража. Если дом вытянутый и узкий, гараж пристраивают с торца. В случае квадратного строения пристройку можно выполнить с любой стороны. Еще одним вариантом, который часто предусматривается в проекте дома 6 на 8 с мансардой, является оборудование цокольного этажа, где можно обустроить гараж. Такое решение позволит получить компактное, вместительное, многофункциональное и стильное строение на небольшой территории. По соседству с гаражом можно обустроить парную или баню.

Проектирование небольшого дома с мансардой требует более внимательного подхода
Мансарда в этом случае будет иметь меньшую площадь. Здесь возможно расположение всего одной комнаты
Поэтому, чтобы получить максимум свободного пространства, особое внимание следует уделить конструкции крыши, выбрав ломаный вариант. Для дачной версии мансардное помещение может быть использовано в качестве хозяйственного помещения. В этом случае рекомендуется обустроить двускатную крышу, вследствие чего удастся существенно сэкономить на строительстве
В этом случае рекомендуется обустроить двускатную крышу, вследствие чего удастся существенно сэкономить на строительстве.
При создании дизайна домов часто применяются дополнительные архитектурные элементы, благодаря которым создается не только презентабельный и стильный внешний вид строения, но и расширяется свободное пространство внутри дома. Одним из таких элементов является эркер. Фото домов с гаражом и мансардой наглядно демонстрируют множество вариаций его расположения.
Также можно использовать колонны, эксклюзивные окна. Дополнительное обустройство террасы или веранды облагородит строение, сделав его более уютным. Для комфортного летнего отдыха отнюдь нелишним будет создание балкона.

Если дом имеет прямоугольную форму, то гараж лучше расположить с торца
Внимания заслуживает проект дома с мансардой (фото это наглядно отображают), где гараж покрывает плоская крыша, которая является основанием террасы. Эстетичность и элегантность конструкции достигается умелым комбинированием отделочных материалов. Для большой семьи придется по душе просторный коттедж с мансардой, увенчанной ломаной крышей, что обеспечивает максимальное целевое использование мансардного этажа.
Прежде чем определиться с конкретным вариантом, следует подробно изучить различные проекты, где в плане дома с мансардой и гаражом представлены всевозможные вариации внутренней планировки помещений. Опытные специалисты адаптируют выбранную разработку под конкретный регион и внесут необходимые изменения, основываясь на пожеланиях заказчика.
О различных видах проектов домов с террасой
Все проекты условно делятся на три большие категории, каждая из которых обладает своими плюсами и минусами. И до того, как выбрать конкретный проект или приступить к его созданию, следует решить, какая именно разновидность входной зоны будет применяться.
Люди нередко пристраивают террасы, но в большинстве случаев это открытые конструкции, позволяющие создавать эффект неограниченности пространства. Кроме того, проекты с открытыми террасами универсальны, потому подойдут для любого дома, а примыкающие помещения беспрепятственно получают естественное освещение.
Из-за тени от навеса в комнате, которая выходит окнами на террасу, будет не очень светло
С другой стороны, крытые конструкции практичнее, так как могут эксплуатироваться вне зависимости от времени года. Они защищены от атмосферных осадков и солнечных лучей. А если террасу еще и должным образом обустроить, то она может использоваться как комфортная зона отдыха или веранда.
Типовые проекты
Что такое типовой проект? Это, с точки зрения архитекторов, строение со стандартными параметрами, имеющее террасу и гараж. Подобные решения целиком готовы к использованию. Вам же остается только нанять строителей, которые построят дом по выбранному проекту.
Проект дома с террасой со встроенным гаражом
К достоинствам типовых проектов можно отнести:
- высокую скорость строительных работ (рабочие не будут ни под что подстраиваться, они просто прибудут к вам с уже готовой схемой и элементами строительства);
- простоту монтажа (реализацию выбранного проекта можно начинать сразу же);
- доступные цены (на разработку проекта тратиться не придется).
Все эти достоинства и являются причинами того, что большая часть владельцев загородных участков предпочитает именно типовые одноэтажные дома.
Важным преимуществом одноэтажного дома с объединенным гаражом в том, что это сочетание экономит территорию
На заметку! В открытой террасе можно расположить лежаки, превратив ее тем самым в летний солярий. Но лишь при условии, что конструкция располагается в хорошо освещенном месте (потребуется лишь оградить ее от любопытных взглядов и ветра).
Лучшие индивидуальные проекты
Для разработки индивидуального проекта потребуются дополнительные расходы и время, однако результат будет действительно стоить того.
Дом с террасой выглядит очень необычно и красиво
К преимуществам данного решения можно отнести:
- внешнюю привлекательность готового дома;
- уникальную планировку;
- шанс воплотить желаемые дизайнерские решения.
Индивидуальное проектирование – оптимальный вариант для тех, кто хочет получить дом, который полностью соответствует всем личным предпочтениям. В процессе разработки будут учтены все ваши пожелания (при условии, что они соответствуют требованиям безопасности).
Компоновка и эскизный проект одноэтажного домаЭкстерьер дома в стиле минимализмОдноэтажный дом с террасойЭкстерьер маленького деревянного дома
Есть и другой вариант – это способ комбинации. Речь идет о некоторых изменениях уже готового бесплатного проекта, который понравился больше всего. Результат – частично оригинальный, частично стандартный проект. Это своего рода «золотая середина» по вполне приемлемой цене.
Особенности постройки
Такой вариант особенно хорошо подходит для участков, которые имеют небольшую площадь под застройку, где надо возвести дом, подсобные постройки, гараж и обустроить территорию, чтобы оставалось достаточно свободного места. Планировка одноэтажных домов с пристроенным гаражом позволяет экономить время на постройке зданий. К тому же потребуется закупить меньше материалов для возведения всего строения.
Очень удобно пользоваться постройкой для хранения авто, которое совмещено с домом Подобное решение особенно выгодно в плохую погоду. При этом тепло от дома может поступать в пристройку или оснащаться системой отопления, что позволяет с комфортом обслуживать авто даже в сильные морозы.
В помещении дополнительно можно хранить хозяйственные вещи, инструмент и так далее. Однако потребуется обеспечить хорошую звуко и теплоизоляцию между постройками.
Такой вариант подходит для участков маленьких размеровИсточник hitas.eu
Проекты
На сегодняшний день имеется множество проектов домов с мансардой и гаражом разного метража и с разным наполнением. Есть варианты с одним и несколькими этажами, с цокольным ярусом, баней или винным хранилищем и даже с террасой над гаражом. Каждый вариант заслуживает отдельного рассмотрения.
Проект зависит и от общего метража дома. Например, коттеджи площадью 120-150 кв. м намного проще оборудовать мансардой или гаражом. Мансарда получится большой и вместительной, а гараж можно пристроить с любой стороны (с фасада или с торца)
Ниже предлагается несколько идей для проектов, каждая из которых может помочь вам окончательно решить, каким же вы хотите видеть свой дом с мансардой и гаражом.
Маленький дом
Пристраивать гараж к небольшому дому площадью до 100 м² нужно с умом
Если же вы – счастливый обладатель квадратного здания, то у вас есть возможность пристроить гараж так, как вам захочется.
Чтобы сделать веранду, придется постараться. Максимум, на что можно рассчитывать – это небольшая комната площадью приблизительно 12 кв. м. Однако она может использоваться как полноценная спальня или детская, если должным образом провести отделочные работы.
Маленьким может быть не только одноэтажный дом. Имея компактное двухэтажное сооружение, от пристроенного гаража лучше вообще отказаться. Лучше всего построить отдельно стоящую гаражную конструкцию.
Мансарда же может быть сооружена только в качестве хозяйственного помещения, например, чулана.
Гараж на 2 машины
Счастливые обладатели больших домов разных площадей (8 на 10 кв. м, 15 на 15 кв. м и так далее) часто задумываются об обустройстве гаража для двух автомобилей. Сейчас многие семьи сталкиваются с тем, что и жена, и муж хотят иметь собственное авто, поэтому появляется надобность в оборудовании большого гаража. Для таких случаев проектные агентства специально разрабатывают подходящие планы. Некоторые из них вы можете увидеть на изображениях ниже.
В этом случае оборудовать мансарду над гаражом просто необходимо. Она получится большой и вместительной. Для полноты эффекта можно отказаться от стандартных стен, заменив их остеклением.
С подвалом
Часто встречаются проекты, предусматривающие наличие цокольного этажа. В таком случае можно оборудовать гараж прямо здесь. Это поможет сэкономить пространство, а также сделает общий вид дома более интересным. По соседству с гаражом можно обустроить баню или парную. В повале она не будет никому мешать, в то же время, предоставляя возможность попариться в любой момент.
Кирпичный замок
Если хочется создать жилище интересной архитектуры, стоит выбрать дом-замок с гаражом. Может показаться, что этот проект не рассчитан на большую семью. Однако на первом этаже такого жилища предусматривается гостиная. Благодаря этому в доме могут гостить друзья и родственники хозяев. Это же помещение часто обустраивается как рабочий кабинет.
Размеры замка выбираются в пределах 6х13,5 м. Стиль архитектуры дома основан на таких фигурах, как круг, восьмиугольник и прямоугольник. Данная композиция отличается привлекательным экстерьером и обладает высокой прочностью. Проекты одноэтажных домов с мансардой и гаражом выполняются исходя из материалов, предназначенных для постройки.

Дом-замок имеет довольно много внутреннего пространства. В башне, которая пристроена к дому, можно разместить уютную веранду или комнату отдыха. Гараж обустраивается в подвале. Это позволяет существенно сэкономить свободное пространство.
Такой дом может иметь следующие показатели:
- 5 помещений жилого назначения;
- 2 санузла;
- Возможность комфортного размещения шести человек;
- Общая площадь дома составляет 245 кв. м.

Необходимо добавить, что в эту площадь включены помещения жилого назначения, которые расположены на площади 86 кв. м. Различны комнаты вспомогательного назначения расположены на 53 кв. м, а веранда, лоджия и подвальное помещение занимают 106 кв. м.
Одноэтажные дома 6х8 – главные особенности
На сегодняшний день дома 6х8 одноэтажного типа приобретают все большую популярность, что объясняется максимальным использованием полезной площади при минимальных финансовых затратах. Отличие одноэтажных строений заключается в планировке помещений, расположении комнат жилого и хозяйственного типа, при этом концепция остается неизменной – комфорт и удобство на небольшой площади.

Одноэтажный дом 6 на 8 с террасойИсточник giropark.ru
Для строительства используются такие материалы, как газобетон или кирпич – для несущих стен, и деревянный брус – для перекрытия
Перед выполнением работ важно ознакомиться с некоторыми рекомендациями, которые помогут сделать жилище максимально функциональным и уютным:
- Жилые окна преимущественно располагать на солнечной стороне;
- Кухня и хозяйственные помещения могут быть глухими, окруженные жилыми комнатами;
- Толщина несущих стен должна быть в пределах 20-30 см, не более;
- Спальню лучше располагать на западной стороне, чтобы утром избежать преждевременное пробуждение от солнечного света;
- межкомнатные перегородки делать толщиной 9-12 см, лучше – из гипсокартона.
Несмотря на то, что планировка дома может быть любой, дом 6 на 8 одноэтажный включает в себя следующие помещения:
- кухня;
- коридор с тамбуром;
- хозяйственное помещение, с небольшой площадью;
- санузел совмещенный или раздельный;
- 1-2 спальни, с площадью примерно 15 м².
Преимущества таких конструкций заключаются в сравнительно недорогой стоимости и проведении работ по ремонту и отделке.

Планировка дома с раздельными туалетом и ваннойИсточник netprikols.appspot.com
Почему отдают предпочтение гаражам с мансардой
Ключевое достоинство гаражей с мансардным этажом – наличие «бонусной» жилплощади, которую можно использовать по своему усмотрению. Помимо хранения автомобилей, такое сооружение может использоваться в качестве гардеробной, тренажерного зала, музыкальной студии, кухни или бильярдной. Мансарду можно отвести под игровую комнату для ребенка, художественную студию, временный склад, библиотеку или кладовую для хранения сезонных предметов и оборудования.
Для молодых семей надстройка над гаражом может стать удачной альтернативой проживанию с родственниками. Обустроив жилую комнату над гаражом, молодожены решат наболевший квартирный вопрос и получат возможность свить уютное семейное гнездышко.
Проект гаража с жилой мансардой привлекателен еще и тем, что строительство такого объекта обойдется не намного дороже стандартного гаража, в то время как возведение отдельно стоящего сооружения требует дополнительной площади и финансовых вложений.
Гараж с мансардой – это способ сэкономить на площади участка и на финансахИсточник assz.ru
Правила организации мансарды в старом доме
Что такое мансарда. Это помещение под крышей дома. То есть над ней, кроме кровельной конструкции ничего нет. Поэтому мансарду можно организовать в любом чердаке в независимости от того, под каким типом крыши он располагается. Главная задача – создать все условия комфортного проживания в мансардном помещении. То есть должно быть не только красиво и удобно, но зимой тепло, а летом прохладно, не говоря о присутствии необходимых коммуникационных сетях.
Чтобы сделать мансарду на старый деревянный дом или кирпичный, необходимо все тщательно продумать. Во-первых, нужно решить вопрос сооружения прочного перекрытия с укладкой напольного основания. Во-вторых, вопрос утепления крыши. Это две главные задача. После чего можно заниматься прокладкой систем отопления, водопровода и канализации, устанавливать кондиционер, проводить отделку новых помещений.
Несущие балки – перекрытие мансардного помещенияИсточник magima.ru
Полы в мансарде
Если говорим о деревянном доме, то перекрытия в нем сформированы несущими балками из брусов, на которые набиты доски. Деревянный настил обязательно утепляется. Такая же конструкция нередко встречается и в кирпичных домах. Но в большинстве случаев с кирпичными строениями используются бетонные плиты перекрытия, которые также утепляются.
Как быстро сделать полы в мансарде по балкам перекрытия.
- По уложенным брусам по их нижним краям набиваются так называемые черепичные бруски.
- Поперек на них укладывают доски плотно друг к другу.
- Закладывают гидроизоляционную пленку, которая будет выполнять функции защиты утеплителя от влажных паров воздуха, исходящих из комнат частного дома.
- Между балками на гидроизоляционный слой закладывают утеплитель (минвату или пенополистирольные плиты).
- Поверх балок укладывают пароизоляцию.
- Сверху поперек монтируют дощатый пол из шпунтованных досок. Можно использовать фанеру или плиты ОСП, на которые впоследствии уложат напольное покрытие (ламинат, линолеум, плитку или прочее).
Основная задача производителя работ – сделать пол ровным, прочным, теплозащищенным.
Утепленные полы внутри мансардыИсточник bouw.ru
Если перекрытие дома – железобетонные плиты, то утепление проводят в следующем порядке. Все зависит от того, какой теплоизоляционный материал будет использоваться. К примеру, керамзит:
- перекрытие выравнивается бетонной стяжкой небольшой толщины (3-5 см);
- после высыхания последней вся площадь напольного основания закрывается гидроизоляционной пленкой в виде полос, которые между собой укладываю внахлест со смещением 10-15 см и закрываются скотчем;
- по периметру мансардного помещения укладывают бруски сечением 70х70 или 100х100 мм, их крепят к бетонному полу анкерами;
- в продольном или поперечном направлении укладывают те же бруски с шагом 1-1,5 м;
- в полученную ячеистую конструкцию засыпается керамзит средней или мелкой фракции;
- сверху обрешетка покрывается пароизоляционной мембраной;
- поверх теплоизоляционного пирога по уложенным брускам набивается дощатый пол или плитный, листовой материал.
Если в качестве утеплителя будут использованы плитные теплоизоляционные материалы, то все делается точно также
Единственное, на что необходимо обратить внимание, плотное прижимание плит утеплителя к элементам напольной обрешетки, чтобы не остались мостики холода
Бетонные полы в мансардном помещенииИсточник goodnapolka.ru
Утепление крыши
Если стропильная система крыши, обрешетка и сам кровельный материал находятся в нормальном техническом состоянии, то вопрос строительства мансарды на даче упрощается до минимума. Что для этого нужно сделать:
- в первую очередь все деревянные элементы кровельной конструкции обрабатываются сначала антисептическим составом, после его высыхания антипиренным;
- по стропильным ногам укладывается пароизоляционная пленка так, чтобы она собой в точности повторила конфигурация стропильных ног, как показано на фото ниже;
- после чего между стропилами закладывают утеплитель, на фото ниже это тоже хорошо видно, главное – плотное прижимание материала к торцам стропильных ног;
Как правильно уложить пароизоляцию и утеплитель на мансардной крышеИсточник roomester.ru
- поверх двух уложенных материалов натягивают гидроизоляционную пленку;
- после чего всю конструкцию закрывают плитным или листовым материалом, к примеру, это может быть гипсокартон, фанера, ДСП, ДВП, ОСП и прочее.
Мансардную крышу изнутри закрывают фанерными листамиИсточник stroytvoydom.ru
Проекты домов с мансардой и гаражом: отличительные черты коттеджей
Дом с мансардой – фото наглядно отображают различные варианты – является наиболее рациональным решением для небольшого участка, позволяющим увеличить жилую площадь без сокращения земельных угодий. Наличие личного транспорта становится причиной еще одного популярного приема – строительства дома с гаражом.

Проект дома с мансардой и гаражом для одного автомобиля
Проекты коттеджей с гаражом и мансардой обладают рядом преимуществ:
- благодаря совмещению двух функциональных зон удается снизить затраты, связанные с разработкой проекта и выполнением строительных работ;
- смежное расположение жилой зоны и гаража создает комфортную обстановку в последнем, что приводит к снижению затрат, связанных с отоплением гаража;
- создание внутреннего прохода позволяет беспрепятственно перемещаться из комнаты в гараж, не выходя на улицу, что особенно удобно в период ненастья;
- создание мансардного помещения обеспечивает увеличение жилой площади, что особенно актуально для одноэтажных построек;
- компактное многофункциональное сооружение позволяет существенно сэкономить свободную площадь земельного участка;
- строительство мансарды обойдется значительно дешевле, чем возведение второго этажа;
- мансардный этаж позволяет дополнительно утеплить жилое помещение, избавив его от сквозняков;
- пристроенный гараж будет стоить намного меньше, чем отдельно стоящий элемент;
- строения имеют стильный и презентабельный внешний вид, заметно выделяющий их на фоне других построек.

























































